+36 (30) 220 3030

Biatorbágy - Eladó Ház


Újépítésű projekt
VÖRÖSBEGY IKER PROJEKT Biat
Alapterület
138 m2
Ár
168.500.000 Ft
Hirdetés azonosító
349873

KIVÁLÓ ELHELYEZKEDÉSŰ, 5 SZOBÁS ENERGIATAKARÉKOS IKERHÁZ

Leírás

CSENDES RENDEZETT UTCÁBAN, JÓL KIÉPÍTETT INFRASTRUKTÚRÁVAL, IDEÁLIS MÉRETŰ IKERHÁZ NAGYCSALÁDOSOKNAK IS!

VÖRÖSBEGY IKER PROJEKT Biat

Biatorbágy központi részén, kiváló tömegközlekedés közelében, megújuló energia felhasználású 144 nm-es (138 nm lakó és + 12 nm terasz) belső kétszintes N + 4 szobás, garázsos ikerház, 315 nm saját telekrésszel 168,5 M Ft-ért eladó!

Várható átadás 2027 II. negyedév
CSOK + államilag támogatott lakásvásárlási hitel, valamint vagyonszerzési illetékmentesség a feltételek teljesítése mellett igénybe vehetők.
Az ingatlan vételára az 5% Áfa mértékét nem tartalmazza. Ez az összeg visszaigényelhető.

Biatorbágy szépen beépült középső kertvárosi részén, ikerházak és családi házak gyűrűjében, a klasszikusan tervezett ikerház, minden szempontból kiszolgál akár egy sokgyermekes családot is.
Kényelmes előkerten keresztül jutunk az épület földszinti részére, ahol a teraszkapcsolatos Nappali-étkező- konyha nagy és világos tere fogad. A földszinten a zuhanyzós fürdőszoba, előszoba és tárolón kívül megtaláljuk még a garázst, vagy igény esetén átalakítva egy nagy szobát és még egy kisebb szoba is rendelkezésre ál ami a kert felé néz.
Az emeleten 3 tágas szoba, zuhannyal és fürdőkáddal megépített fürdőszoba, valamint a kazán mosókonyha lett kialakítva.
Az épület mindkét födémje monolit vasbeton. Fő falazata thermoblock (hungarocel alaptest vasalva betonnal kiöntve) téglából készült, ami közel passzív ház energetikai jellemzőket mutat. A válaszfalak hagyományos 10 cm porotherm tégla szerkezetűek. A fűtése levegő-víz hőszivattyús rendszerrel, mennyezeti fűtés és hűtés, valamint padló fűtés kiépítésével.
Az ablakok 3 rétegű üvegezéssel és motoros aluredőnyökkel szereltek. A záró födém 25 cm ásványgyapottal terítve. A vételár nem tartalmazza a választható belső burkolatokat, szanitereket, csapokat, beltéri ajtót és a festést. Az épület kívülről és a kert teljesen készre burkolva és füvesítve kerül átadásra. Részletesebb műszaki adatok rendelkezésre álnak.
A településről:
Biatorbágy rendkívül jó közlekedési kapcsolatokkal rendelkezik. A főúthálózati kapcsolatok szempontjából az M1 autópálya, az M0 autóút és az 1. sz. főút szerepe kiemelkedő fontosságú. Biatorbágyon halad keresztül az 1. sz. vasúti fővonal is. Az M1 autópálya a belterület északi részét szeli át. Biatorbágy és az autópálya közötti kapcsolatot a herceghalmi csomópont, és az 1–M1–M0 csomópontrendszer biztosítja.
Műszaki tartalom részletezése:
A beépítésre kerülő anyagok és a kivitelezés minősége I. osztályú!
Épületszerkezet:
- THERMOBLOCK 35 hőszigetelt grafitos hungarocell falazóelem a külső főfalaknál illetve duplán - - --- Porotherm 20-as tégla a két lakás között +5cm hangszigeteléssel,
- Egyéb belső falak Porotherm 10-es válaszfaltéglából,
- Földszint feletti födém illetve lépcső monolit vasbeton szerkezet,
- Emelet feletti födém szintén monolit vasbeton szerkezet!!!
Hőszigetelés és homlokzatok:
- 16,5 + 4,5 cm-es külső grafitos hungarocell homlokzati nemesvakolattal
- lábazatnál gördülőszemcsés lábazatvakolat
- emelet feletti födémben 25 cm-es ásványgyapot szigetelés
- külső nyílászárók 5-6 kamrás műanyag, fehér profilrendszerből, a legkorszerűbb hőszigetelésű 3 rétegű! üvegezéssel (k=0,7 W/m2K.),
- tetőfedés hullámos betoncseréppel (antracit színű); színes alumínium bádogozás (antracit színben)
Árnyékolástechnika:
- minden nyílászárón távirányítós-motoros-időprogramozható alumínium redőny
- minden ablakon szúnyoghálóval kombinálva
Beltéri ajtók:
- NEM TARTOZÉK
Fűtés-Hűtés (mennyezet és részben padló) és használati melegvíz ellátás:
- HŐSZIVATTYÚ előkert elválasztó kerítéshez telepítve (minőségi Daikin Altherma3 8kW)
- KEKELIT CLIMATEFIX C bebetonozható mennyezeti hűtő/fűtő modul előregyártott csőregiszterekből
- SINUM központi vezérlőrendszerrel
- szobánkénti termosztát vezérléssel
Elektromos szerelvények:
- ikerházanként a villanyóra lakossági 1x32A, H tarifa 1x25A kapacitású
- az elektromos szerelvények,kapcsolók és dugaszoló aljzatok fehér vagy krém színűek (összesen 100db)
- a lámpatestek nem tartozékok.
Internet csatlakozók:
- csatlakozó kerül kialakításra a nappali vagy étkező helységbe és a hálószobákba
Televízió hálózat:
- televízió csatlakozó kerül kialakításra a nappali helységbe és a hálószobákba, hálózatra csatlakozás nélkül.
Riasztó:
- később kiépíthető riasztórendszer telepítéséhez védőcsövek (bekábelezve) kerülnek elhelyezésre, térérzékelők részére.
Padlóburkolatok:
- burkolás - vevői igények szerint meghozott burkolólapokkal
Falburkolatok (fürdőszobákban):
- burkolás - vevői igények szerint meghozott burkolólapokkal
Falak és mennyezetek felületkezelése, festése:
- a korszerű, minőségi gépi vakolást követően, készre-festés fehér színben
Konyhabútor:
- NEM TARTOZÉK
Fürdőszoba berendezések és csapok (szaniterek):
- NEM TARTOZÉK
Fogyasztásmérés:
- saját fogyasztásmérőkkel lesz felszerelve
Kert:
- Utcafronti kerítéskapu távirányítós, motoros működtetéssel.
- Autóparkoló és járda térkövezve
- Terasz járdalapokkal térkövezve
- Fűvesítés
- Kerti vízcsap kerül kialakításra.
- 2 gépkocsi számára kerti, elkerített beálló
- a kert teljes mértékben elkerített, elszeparált

Eladási ár:
(a fenti leírásban megtalálható emelt szintű műszaki tartalommal: HŐSZÍVATTYÚS felület Hűtés-Fűtés, második födém is monolit beton!!!, 3 réteg üvegű ablakok, mindenhol motoros távirányítós redőny, minőségi szigetelés, riasztó előkészítés és tényleg I.osztályú építési minőség, stb.)


Ajánlom minden olyan új otthont keresőnek, aki nyugodt csendes helyen keres minden funkciót ellátó, hosszú távon megbízhatóan és alacsony fenntartással működő tágas és kényelmes házat, optimális méretű kerttel.

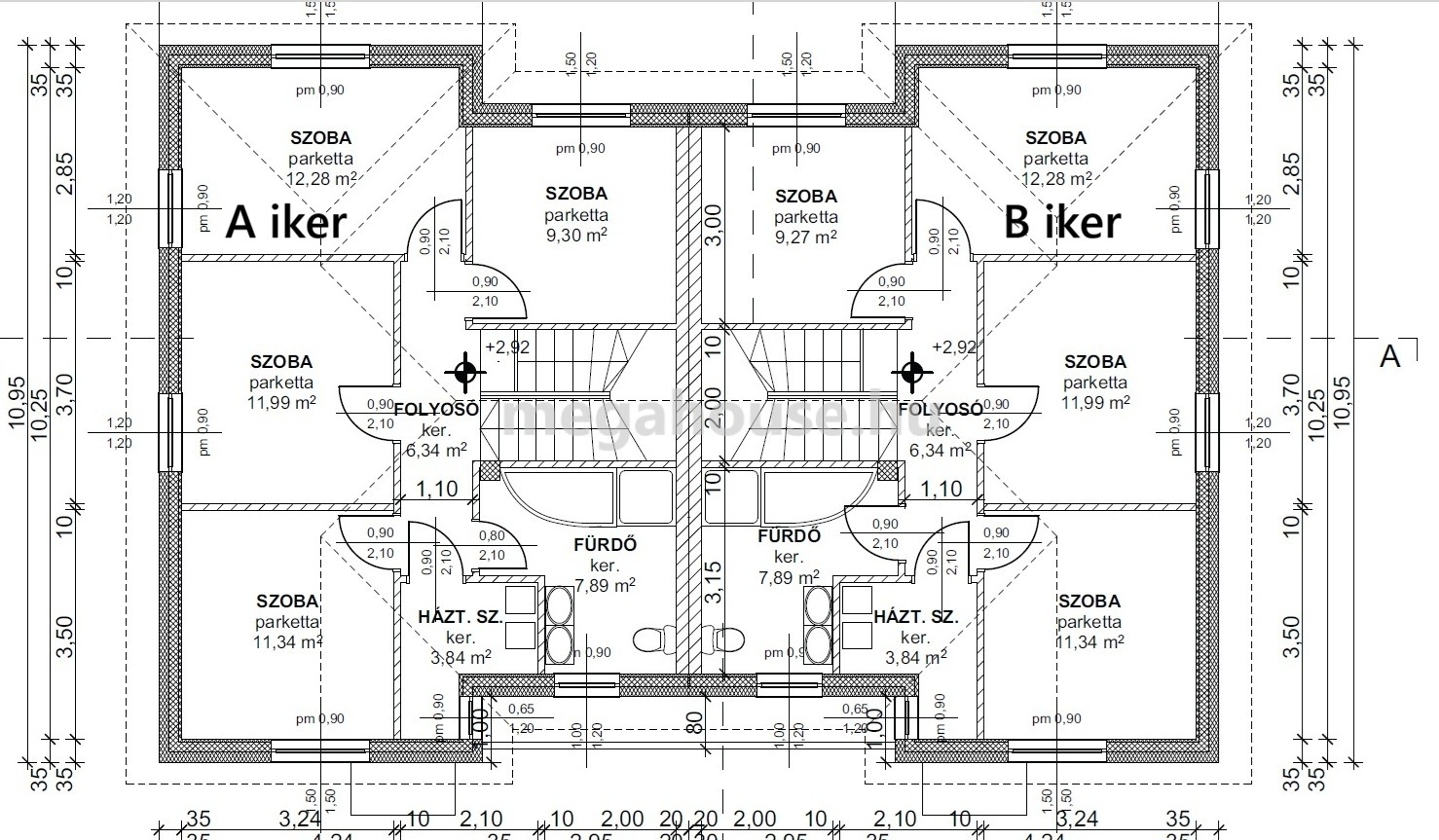
A mellékelt alaprajzokból kitűnően tájékozódhat.

Amennyiben felkeltette érdeklődését, készséggel várom hívását.

További új építésű és használt ingatlanok széles választéka adatbázisunkban elérhető.

Ingyenes, teljes körű hitel ügyintézéssel állunk rendelkezésre magas szolgáltatási színvonalon.


Kapcsolati adatok

Czeglédi József

Czeglédi József

Értékesítő

+36-30-223 1444

j.czegledi@budaorsihazak.hu

Érdeklődjön az ingatlanról, e-mailben!

Hasonló ingatlanok

Hívás