+36 (30) 220 3030

Budaörs - Eladó Ház


Újépítésű projekt
BUDAÖRSI LUXUS IKERHÁZAK
Alapterület
136 m2
Ár
255.000.000 Ft
Hirdetés azonosító
347958

BUDAÖRSI LUXUS IKERHÁZAK

Leírás

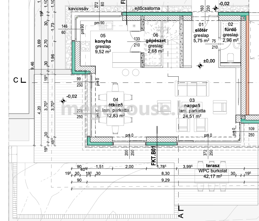
BUDAÖRS KERTVÁROSI, NYUGODT RÉSZÉN, N+4 SZOBÁS, 135 NM-ES, KERTKAPCSOLATOS LUXUS IKERHÁZ FÉL ELADÓ 255 M FT-ÉRT.

Az egy éven belül költözhető ingatlan tervezői külön figyelmet fordítottak a lakások privát szférájának maximalizálására. Ennek és a telek adottságainak köszönhetően a két ikerház felet mindösszesen egy kétállásos garázs köt össze, emellett teljesen külön telekbejárattal is rendelkeznek.

Az ingatlant az utcáról egy külön bejáratú kapun keresztül közelíthetjük meg. Itt található a két férőhelyes udvari beálló is. Az előtérből a tágas, amerikai konyhás/étkezős nappaliba érkezünk, melyhez kapcsolódik egy 42 nm-es, panorámás terasz, azon túl pedig a kizárólagos használatú, 250 nm-es privát kertrész. Ezen a szinten egy gépészeti helyiség és egy zuhanyzós fürdőszoba kapott még helyet.

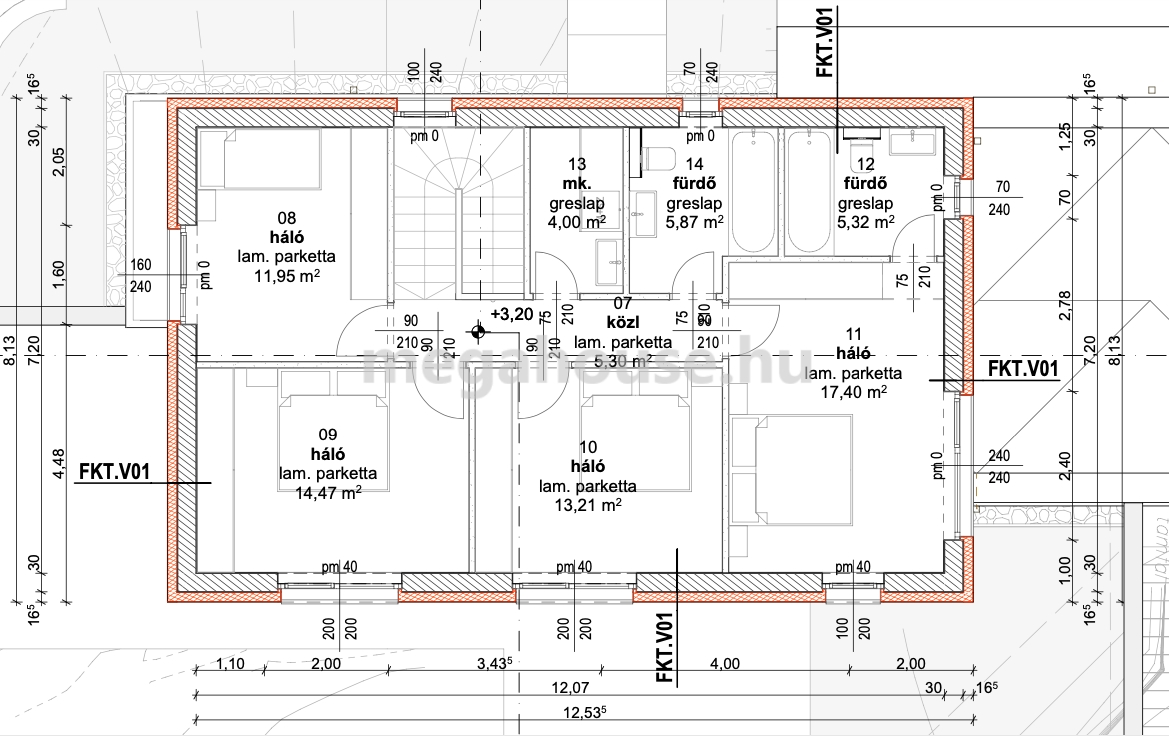
A ház emeletén a fő hálószobához privát, káddal felszerelt fürdőszobát terveztek. További három hálószobája kényelmes méretű. Ezen a szinten található még egy kádas fürdőszoba / igény szerint zuhanyzósra is kialakítható / és a mosókonyha.

A lakás hűtéséről, fűtéséről és meleg víz ellátásáról gazdaságos levegő-víz Daikin hőszivattyú rendszer gondoskodik, mennyezet fűtés-hűtés és padlófűtés formájában. A hőmérséklet helyiségenként szabályozható.
A friss levegőt hővisszanyerő légtechnika biztosítja.

Az ingatlan rezsije igen kedvező, többek között a H tarifás áramnak és a napelem rendszernek (10 kW) köszönhetően.

A lakás nyílászárói Kömmerling 76 típusúak, külső részén színezett alu borítással, a földszinten emelő toló kivitelben alumínium szerkezetből, az alsó szinten zsalúziákkal, az emeleten elektromos aluminium redőnyökkel felszereltek.

A számos referenciával rendelkező beruházó minőségi anyagok felhasználásával dolgozik. A burkolatokat és belső ajtókat leendő tulajdonosok választhatják ki.

Várható átadás: 2026 IV. negyedév

A projekt további elérhető ingatlanai:

B lakás: 250 nm ingatlan + 36 nm terasz + 700 nm kert - 520 M Ft.

Kapcsolati adatok

Senye Katalin

Senye Katalin

Kiemelt értékesitő

+36-30-398 8628

kata.senye@madarhegyingatlan.hu

Érdeklődjön az ingatlanról, e-mailben!

Hasonló ingatlanok

Hívás