+36 (30) 220 3030

Érd - Eladó Lakás


Újépítésű projekt
LIGET CENTER 14
Alapterület
63 m2
Ár
78.990.000 Ft
Hirdetés azonosító
351783

ÚJ ÉPÍTÉSŰ OTTHON ÉRDEN / 1EM/ 5

Leírás

LIGET CENTER PROJEKT
ÚJ ÉPÍTÉSŰ LAKÁSOK ÉRDEN - A JÖVŐ OTTHONA
1 EMELETI N+2 SZOBÁS, ERKÉLYES LAKÁS NETTÓ 63 NM 78,99 M FT-ÉRT ELADÓ

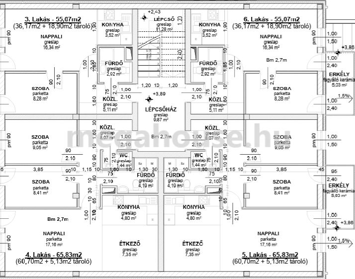
LAKÁS
Érd városközpontjában, több lakásos társasházban kínálunk modern műszaki megoldásokkal kialakított, N+2 szobás, erkélyes lakást. Az ingatlan keleti tájolásának köszönhetően világos, napfényes terekkel rendelkezik már a reggeli óráktól kezdve. Az erkély kellemes lehetőséget biztosít a pihenésre és a szabadban töltött időre. A korszerű kialakítás és az átgondolt alaprajz kényelmes, jól élhető otthont teremt. Ideális választás mind saját részre, mind befektetésnek.

MŰSZAKI TARTALOM
A társasház stabil beton alapra épül, főfalai Porotherm 30 N+F téglából készülnek, 15 cm-es hőszigeteléssel ellátva. A lakások között 30 cm vastag hanggátló Porotherm AKU falazat biztosítja a megfelelő akusztikai komfortot, míg belül 10 cm-es válaszfalak kerülnek kialakításra. A korszerű, háromrétegű üvegezésű műanyag nyílászárók kiváló hőszigetelést nyújtanak, rejtett redőnytokkal és elektromos előkészítéssel. A födémek vasbeton szerkezetűek, a zárófödém fa kialakítású szigeteléssel, a tetőt pedig Terrán Zenit Resistor cserép fedi.
A lakások igény szerint befejezhetők, a burkolatok és beltéri ajtók meghatározott értékhatárig szabadon választhatók. A fűtést korszerű, lakásonkénti hőszivattyús rendszer biztosítja padlófűtéssel, a meleg vízellátásról villanybojler gondoskodik, önálló mérőórákkal kiépített közművekkel.

PARKOLÁS
Mindegyik lakáshoz 1 garázs vagy 1 beálló, valamint tároló kötelező megvásárolni.

LOKÁCIÓ
A projekt Érd centrumában helyezkedik el, ahol minden fontos szolgáltatás könnyedén elérhető. A közelben megtalálhatók üzletek, iskolák, óvodák, valamint egészségügyi intézmények is. A kiváló közlekedési kapcsolatok révén Budapest gyorsan és kényelmesen megközelíthető, akár autóval, akár tömegközlekedéssel. A központi elhelyezkedésnek köszönhetően a mindennapi ügyintézés és bevásárlás is egyszerűen, akár gyalogosan is megoldható.

További lakások a projektben:
1 EM nettó 37 nm N+1 47,99 M Ft
1 EM nettó 61 nm N+2 76,99 M Ft
2 EM nettó 37 nm N+1 47,99 M Ft
2 EM nettó 61 nm N+2 76,99 M Ft
TETŐTÉR nettó 77 nm N+3 79,99 M Ft
TETŐTÉR nettó 36 nm N+1 43,99 M Ft

Tervezett átadás: 2027.06.01.
RÉSZLETES MŰSZAKI LEÍRÁS MADÁRHEGYINGATLAN PROJEKTIRODÁNKBAN
Kérdéssel vagy megtekintéssel kapcsolatban, várom hívását a hét bármely napján!

Kapcsolati adatok

Érdeklődjön az ingatlanról, e-mailben!

Hasonló ingatlanok

Hívás