Szigetszentmiklós
Eladó Ipari
Újépítésű projekt
ÁRUHÁZAK, ÜZLETHÁZAK , IRODAHÁZAK, TÁRSASHÁZAK EGYBEN ÉRTÉKESÍTVE ( ELADÓ ÉS KIADÓ )
2.100 m2
890.000.000 Ft
348205
Szigetszentmiklós - Eladó Ipari
Újépítésű projekt
ÁRUHÁZAK, ÜZLETHÁZAK , IRODAHÁZAK, TÁRSASHÁZAK EGYBEN ÉRTÉKESÍTVE ( ELADÓ ÉS KIADÓ )
2.100 m2
890.000.000 Ft
348205
TELEPHELY ÜZLETTEL, KAMIONOS BEHAJTÁSSAL
Leírás
KOMPLEX TELEPHELY FORGALMAS HELYEN
KIEMELTEN FORGALMAS RÉSZEN, ÜZLETI NEGYEDBEN
ÜZLET,RAKTÁR BEMUTATÓTEREM KAMIONOS BEHAJTÁSSAL
Szigetszentmiklós forgalmas részén 2100 nm összterületű telephely /üzleti egység 3134 nm-es telken 890 M Ft-ért eladó.
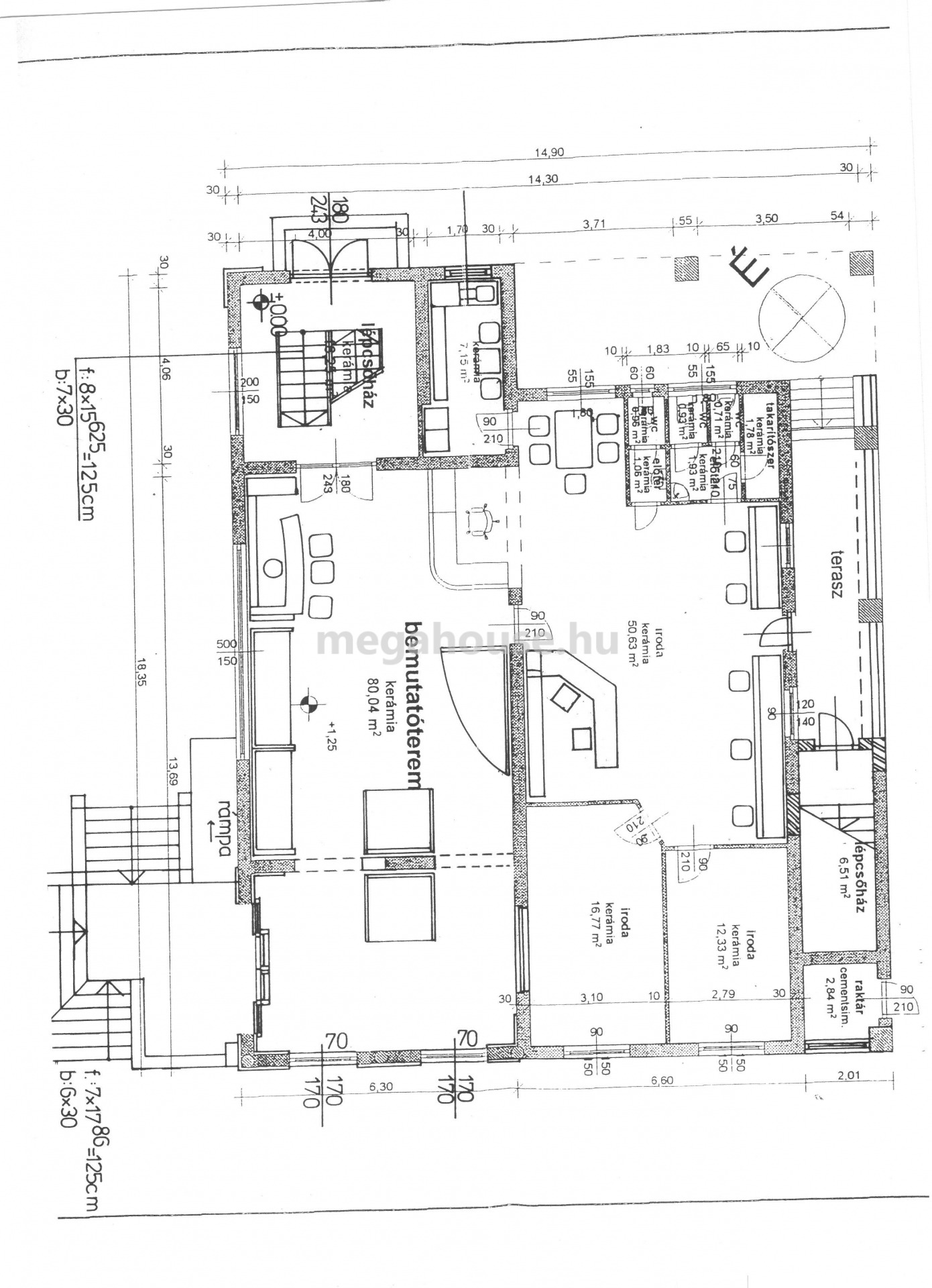
A jó állapotú, praktikus és célirányos elrendezésű megkímélt ingatlan egy 3 épületből álló kereskedelmi komplexum irodai és bemutatóterem funkcióval, hatalmas parkolóval, kéziraktárral és nagy belmagasságú, kamionnal is megközelíthető raktárral.
ÜZLETHELYISÉG:
Pince+földszint+tetőtér
A földszinti bemutatóterem (182 nm+ 14 nm fedett terasz ) tágas, világos, fotocellás dupla ajtóval, exkluzív olasz kőlapokkal van burkolva. Vezetői szoba, tárgyaló, pultok, személyzeti konyha, női-férfi mosdók találhatók itt. Nagy terek, áttekinthetőség. Plusz kijárat a hátsó raktár és a felső iroda felé.
Az alsó szintet ( 194 nm ) mobil lépcsőn és teherliften keresztül az udvarról és az üzletből is elérhetjük. Itt található az alsó 2 szint fűtését és melegvíz ellátását szolgáló Viesmann kazán. Szintén tárolók, raktárak, bemutatóterem, mosdók.
Az iroda ( 239 nm ) a felső szinten került kialakításra . Külön fűtésrendszer, és almérők, kisebb-nagyobb tárgyalók és irodahelyiségek.Rejtette világítások klímák, kellemes munkakörnyezet.
NAGY RAKTÁR ÉPÜLET ( 1188 nm )
Szerkezet:pillérváz, tégla kitöltő falazattal , 6 m belmagassággal.Hörmann magas kapuk (2db ) a ki és bejárathoz, kamionos egyirányú forgalommal az árupakoláshoz. Ipari padló, Acél rácsos tartó, Lindab lemezfedés. teljes belmagasságban kiépített polcszerkezet. Kiváló állapot.
MŰHELY, RAKTÁR (154 nm )
Külön épületben két nagy , külön megközelíthető és zárható helyiségből álló raktár- bemutatóterem vagy bármely egyéb funkcióra alkalmas ingatlan. Saját cirkó fűtés radiátorokkal, mosdó. Nagy ablakok, szép világos, hatalmas egybefüggő tér.
A speciálisan kialakított ingatlan Lakihegyen található, Budapesttől 20 km-re déli irányban. Meg-közelíthető az M0-s körgyűrű elágazástól 2 km-re. 3 db épület a térképkivonaton feltüntetésre került " KIVETT ÜZLET ÉS RAKTÁR" megnevezéssel
A terület Viacolor burkolattal ellátott, kamionforgalomra is alkalmas vastagságú és teherbírású alapozáson. Az
egyéb szabad területek szintén teherforgalomra alkalmas szilárd burkolattal fedettek. 21 db vendégparkoló, és az épület mögött további parkolók telken belül.A telep két, távirányítású kapuval ellátott bejárattal rendelkezik, sorompókkal, térvilágítással, térfigyelős kamerarendszerrel, riasztóval.
A telek GKSZ 13 övezetbe tartozik. Beépíthetősége: 40%, épületmagasság 4,5-6 m közötti, a legkisebb zöldfelület mértéke 20%, a szintterületi mutató 1,2
Amennyiben vállalkozására egy komplex egységet szeretne, mely évek igazán kiváló eredményeket produkált, várom érdeklődését bővebb információval!
Paraméterek
Paraméterek
| Település: | 2310 Szigetszentmiklós |
| Tranzakció típusa: | Eladó |
| Ingatlan típusa: | Ipari / Telephely |
| Alapterület: | 2.100 m2 |
| Telek terület: | 3134 m2 |
| Állapot: | Újszerű |
| Közműellátás: | Csatorna, Villamos energia, Gáz, Víz |
| Megközelíthetőség: | Aszfaltúton |
| Extrák: | Tehermentes |
Kapcsolati adatok
Érdeklődjön az ingatlanról, e-mailben!
ADATVÉDELMI ÉS ADATKEZELÉSI TÁJÉKOZTATÓ
I. ÁLTALÁNOS INFORMÁCIÓK, AZ ADATKEZELŐ
1.1. Az adatkezeléshez kapcsolódó gazdasági tevékenység
A jelen adatkezelési tájékoztató (továbbiakban: „Tájékoztató”) a Megahouse franchise hálózat án belül megvalósuló adatkezelésekre vonatkozik. A Megahouse franchise hálózat a vele kapcsolatba lépő személyek részére ingatlanértékesítési, ingatlanközvetítési szolgáltatást (pl.: ingatlan értékesítése, bérbeadása, egyéb hasznosítása; ingatlan felkutatása vásárlás, bérlet céljára; stb.) nyújt, valamint elősegíti az ehhez kapcsolódó egyéb szolgáltatások igénybe vételét, közvetítését (pl: hitelfelvétel, energetikai tanúsítvány, értékbecslés, stb.). A Megahouse franchise hálózat által nyújtott szolgáltatásokról részletes információ elérhető a www.megahouse.hu weboldalon (továbbiakban: „Weboldal”), vagy bármely Megahouse irodában.
A Megahouse franchise hálózatban a tényleges szolgáltatást a franchise tulajdonosával (MEGAHOUSE FRANCHISE Kft.) szerződéses kapcsolatban álló Franchise és Al-franchise partnerek (továbbiakban: „Partnerek”) végzik. A Franchise partnerek önálló gazdasági társaságok, amelyek szerződéses kapcsolatban állnak a Franchise tulajdonossal. Az Al-franchise partnerek önálló gazdasági társaságok, amelyek szerződéses kapcsolatban állnak a Franchise partnerrel, és ezen szerződés alapján szerződő partnerei a Megahouse franchise hálózatnak. A tényleges üzleti tevékenységet a Franchise partner és az Al-franchise partner közösen és külön is végezheti , a szolgáltatásokat közösen nyújtják.
1.2. Az adatkezelők személye
Figyelemmel arra, hogy a fenti 1.1. pontban írtak szerint azokat a tevékenységeket, amelyhez az adatkezelés kapcsolódik, több személy végezheti, az egyes tevékenységekhez kapcsolódó adatkezelésnek több adatkezelője lehet. Így az Érintettek személyes adatait a jelen Tájékoztatóban meghatározottak szerint az alábbi adatkezelők kezelik:
Megahouse Franchise Kft., mint a Megahouse franchise tulajdonosa és a Megahouse franchise hálózat üzemeltetője (székhely: 2040 Budaörs Budapesti út 108 cégjegyzékszám: 13 09 107029; e-mail: info@budaorsihazak.hu ; telefon: +36-30 220 3030; a továbbiakban: „MEGAHOUSE”). A Weboldalt a Webrakéta Kft (1111 Budapest, Lágymányosi út 12 , Telefon: +36 (30) 37 38 706 , E-mail: info@webraketa.hu kezeli. Az adatkezelés jogalapja: a Felhasználó hozzájárulása, az Infotv. 5. § (1) bekezdése.
Franchise partner: A Megahouse franchise hálózat azon tagja, amely a Megahouse -al kötött franchise szerződés alapján szerződéses kapcsolatban van, és ingatlanközvetítői tevékenységet folytat. A Franchise partner adatai megtalálhatóak a megbízási szerződésen, valamint minden olyan dokumentumon, amely a Franchise partner és az Érintett közötti kapcsolatfelvételre, kapcsolattartásra szolgál, vagy amelyen az Érintett adatokat ad meg, továbbá elérhetők az adott Franchise Partner által működtetett irodában is.
Al-franchise partner: A hálózat azon tagja, amely a Megahouse Franchise partnerével szerződéses jogviszony alapján, a Franchise partner által működtetett Megahouse képviseletében ingatlanközvetítői tevékenységet folytat. Az Al-franchise partner adatai megtalálhatóak a megbízási szerződésen, valamint minden olyan dokumentumon, amely az Al-franchise partner és az Érintett közötti kapcsolatfelvételre, kapcsolattartásra szolgál.
Ahol jelen Tájékoztató az „Adatkezelők” megnevezést használja, azon a MEGAHOUSE-t, a Franchise partnert és az Al-franchise partnert egyaránt érteni kell.
Ahol jelen Tájékoztató a „Partnerek” megnevezést használja, azon a Franchise partnert és az Al-franchise partnert egyaránt érteni kell.
1.3. A MEGAHOUSE, a Partnerek, és az Ingatlanértékesítő szerepe és kapcsolata
A Megahouse franchise hálózatot a MEGAHOUSE, mint a franchise tulajdonosa működteti és tulajdonolja. A WEBRAKÉTA Kft fejleszti és üzemelteti azon (www.ingatlanszoftver.hu ) informatikai rendszert, amely felhasználásával sor kerül a megbízások rögzítésére, a szolgáltatások nyújtására, a szolgáltatással kapcsolatos igények felmérésére. A MEGAHOUSE határozza meg az adatkezelés során alkalmazott nyomtatványokat, szerződéseket, az értékesítési folyamatokat, a szerződésszegés esetén követendő eljárást.
A Partnerek az adatokat minden esetben a www.ingatlanszoftver.hu informatikai rendszerében rögzítik. Figyelemmel arra, hogy a MEGAHOUSE biztosítja a Partnerek részére azt a rendszert, dokumentumokat, nyomtatványokat, eljárásrendeket, amelyek az adatkezelést meghatározzák, emellett a teljesítésben is közreműködik, a MEGAHOUSE adatkezelőnek minősül.
A Franchise partner a tevékenységet minden esetben franchise szerződés alapján üzemelteti, amelyet a MEGAHOUSE-szal köt meg. A franchise szerződés alapján a Partner használja a www.ingatlanszoftver.hu informatikai rendszerét.
Az Érintettel a Franchise és Al-franchise partner lép kapcsolatba, Partnerek nyújtják az Érintett számára a szolgáltatásokat, így a Partnerek adatkezelőnek minősülnek.
A fentiek alapján az Adatkezelés célját, eszközeit és szabályait a MEGAHOUSE határozza meg. A Partnerek az adatokat az Érintettel kötött szerződés alapján, vagy az Érintett hozzájárulása alapján kezelik, figyelemmel arra, hogy az Érintettel a Partnerek állnak közvetlen kapcsolatban. Figyelemmel arra, hogy az adatkezelés célját és eszközeit az Adatkezelők nem közösen határozzák meg, nem minősülnek közös adatkezelőnek. Az egyes adatkezelők adatkezelése így önálló, ugyanakkor a legtöbb adatkezelési tevékenység az Adatkezelők közös tevékenysége alapján valósul meg, így mind a MEGAHOUSE, mind a Partnerek adatkezelőnek minősülnek.
Az Ingatlanértékesítő az a személy, aki az Al-franchise Partner nevében és képiviseletében eljárva, az Al-franchise Partnerrel létrejött jogviszonya alapján jár el a megbízási szerződés teljesítése során. Az Ingatlanértékesítő lehet maga az egyéni vállalkozó Al-franchise Partner, vagy az Al-franchise Partner ügyvezetője, munkavállalója, alvállalkozója. Az Ingatlanértékesítő nem önállóan jár el a szolgáltatás nyújtása során. Az Ingatlanértékesítők a tevékenységüket minden esetben az Al-franchise partner nevében, a MEGAHOUSE és a Partnerek javára, az általuk adott utasítások szerint végzik. Az Ingatlanértékesítők eljárását, feladatait a MEGAHOUSE és a Partnerek részleteiben is meghatározzák, az Ingatlanértékesítőket a MEGAHOUSE ellenőrzi. Az Ingatlanértékesítők nem jogosultak önállóan, saját nevükben és javukra eljárva, az Érintettel szerződést kötni, számukra szolgáltatást nyújtani. Az Ingatlanértékesítők az adatokat minden esetben a a MEGAHOUSE által biztosított www.ingatlanszoftver.hu által működtetett informatikai rendszerben és a MEGAHOUSE által létrehozott nyomtatványain rögzítik. Amennyiben az Ingatlanértékesítő az Al-franchise partner alvállalkozója, adatfeldolgozónak minősül (továbbiakban: „Adatfeldolgozó”).
1.4. Az egyes Adatkezelők adatkezelései
Figyelemmel arra, hogy a MEGAHOUSE a franchise hálózat tulajdonosa , a MEGA HOUSE valamennyi, az értékesítő partnerein keresztül kapcsolatba lépő érintett adatát kezeli. A Partnerek kizárólag azon érintettek adatait kezelik, akikkel szerződést kötnek.
A MEGAHOUSE üzemelteti az alábbi weboldalakat: a wwwmegahouse.hu, www.budaorsihazak.hu, www.ingatlanbudaors.com, www.madarhegyingatlan.hu , www.luxusingatlan.com így a Weboldalak tekintetében az adatkezelő a MEGAHOUSE.
Az érintettek adatait kezeli az a Franchise partner és Al-franchise partner, aki az érintettel kapcsolatba lép (akivel megbízási szerződést köt, megtekintési nyilatkozatot ír alá, ingatlan bemutatását kéri), valamint minden esetben kezeli a MEGAHOUSE.
1.5. Az Érintett
Az adatkezeléssel érintett személy az ügyfél, az a személy, aki az Adatkezelőkkel és Adatfeldolgozóval kapcsolatba lép, és ennek során megadja adatait a szerződés megkötése, a szolgáltatások igénybe vétele céljából. Érintett az a személy is, akinek az adatai más módon (más érintettől, ügyféltől, nyilvános forrásból) kerülnek az Adatkezelőkhöz.
1.6. Irányadó jogszabályok
Az Adatkezelők a tevékenységüket az Európai Unió és a magyar jogszabályok hatálya alatt végzik. Az adatkezelésre elsősorban az Európai Unió általános adatvédelmi rendelete vonatkozik (Európai Parlament és a Tanács (EU) 2016/679 rendelete (2016. április 27.) a természetes személyeknek a személyes adatok kezelése tekintetében történő védelméről és az ilyen adatok szabad áramlásáról, valamint a 95/46/EK rendelet hatályon kívül helyezéséről; továbbiakban: „GDPR”). A GDPR szövege elérhető a http://eur-lex.europa.eu/legal-content/HU/TXT/?uri=CELEX:32016R0679 honlapon.
Ezen túlmenően az irányadó jogszabályok:
Az információs önrendelkezési jogról és az információszabadságról szóló 2011. évi CXII. törvény;
a pénzmosás és a terrorizmus finanszírozása megelőzéséről és megakadályozásáról szóló 2017. évi LIII. törvény (a törvény által előírt azonosítási, bejelentési, nyilvántartási adatokat illetően, továbbiakban: „Pmt.”);
a számvitelről szóló 2000. évi C. törvény 169. § (a bizonylatok megőrzését illetően);
a gazdasági reklámtevékenység alapvető feltételeiről és egyes korlátairól szóló 2008. évi XLVIII. törvény.
A vonatkozó jogszabályok elérhetők a http://net.jogtar.hu/ címen.
1.7. A Tájékoztató hatálya
Jelen Tájékoztató kizárólag a GDPR hatálya alá tartozó adatkezelésekre terjed ki.
A GDPR alapán személyes adat az azonosított vagy azonosítható természetes személyre (továbbiakban: „Érintett”) vonatkozó bármely információ; azonosítható az a természetes személy, aki közvetlen vagy közvetett módon, különösen valamely azonosító (például név, szám, helymeghatározó adat, online azonosító) vagy a természetes személy testi, fiziológiai, genetikai, szellemi, gazdasági, kulturális vagy szociális azonosságára vonatkozó egy vagy több tényező alapján azonosítható.
Mindezek alapján jelen Tájékoztató hatálya nem terjed ki azon adatokra, amelyek nem természetes személyekre vonatkoznak (pl. cégadatok), vagy amelyek nem hozhatók kapcsolatba természetes személyekkel (pl. statisztikai adatok, azon adatok, amelyek anonimizáltak). Jelen Tájékoztató hatálya kizárólag az Adatkezelők adatkezelésére terjed ki.
II. AZ ADATKEZELÉS ELVEI, CÉLJA, JOGALAPJA
2.1. Az adatkezelés elvei
Az Adatkezelők az adatokat jogszerűen, tisztességesen, és az Érintett számára átlátható módon kezelik. Az Adatkezelők törekednek arra, hogy az általuk kezelt adatok pontosak és naprakészek legyenek. Az Adatkezelők biztosítják az Érintett jogainak érvényesülését, és megteszik a szükséges intézkedéseket annak érdekében, hogy az adatkezelés annak minden szakaszában jogszerű legyen.
2.2. Az adatkezelés célja
Az adatkezelés elsődleges célja az Adatkezelők szolgáltatásainak nyújtása, és az ehhez kapcsolódó üzleti tevékenység elvégzése. Ezen belül az adatkezelés céljai:
Az érintett személyének azonosítása, az Érintettel való kapcsolatfelvétel és kapcsolattartás;
Az Érintett által értékesíteni, bérbe adni kívánt ingatlan rögzítése az informatikai rendszerben, az értékesítés (bérbe adás) elősegítése;
Az ingatlanra vonatkozó hirdetések közzététele, a lehetséges vevők (bérlők) felkutatása;
Ingatlant kereső Érintett esetén az igények feltárása;
Az ingatlant kereső és kínáló ügyfelek között a kapcsolat létrehozása, az ingatlanra vonatkozó ügylet létrejöttének elősegítése;
Egyeztetés a felek között az ügylettel kapcsolatban;
Szükség esetén a hiteligény felmérése, és a pénzügyi szakértővel való kapcsolat felvétele;
Az Érintett és az Adatkezelők között a megbízási szerződés létrehozása és teljesítése;
Kapcsolódó szolgáltatások (pl. energetikai tanúsítvány, értékbecslés) nyújtása, ezen szolgáltatásokat nyújtó szolgáltatókkal való kapcsolatfelvétel elősegítése;
A jogviszonyból származó jogok gyakorlása, kötelezettségek teljesítése;
Szerződésszegés (pl. megkerülés) esetén az igények érvényesítése;
Jogszabályban elrendelt kötelezettségek teljesítése (pl. ügyfél-átvilágítás);
Panaszkezelés, fogyasztóvédelem;
Az Érintett külön hozzájárulása esetén reklámozás.
2.3. Az adatkezelés jogalapja
Figyelemmel arra, hogy az Adatkezelők több célból is kezelnek személyes adatot, az adatkezelés jogalapja is többféle lehet. A főbb jogalapok az alábbiak, az egyes adatkezelésekhez kapcsolódó konkrét jogalapok a Tájékoztató IV. pontjában szerepelnek.
Az érintett hozzájárulása (GDPR 6. cikk (1) bek. a) pont)
Az adatkezelés jogalapja elsősorban az Érintett hozzájárulása. Az Érintett a hozzájárulását azzal adja meg, hogy az Adatkezelőkkel kapcsolatba lép, és kezdeményezi a szolgáltatások igénybe vételét. Amennyiben az Érintett adatait az Adatkezelők valamelyike felveszi, a hozzájárulást az Érintett az adatkezelési tájékoztató elfogadásával adja meg. Online adatfelvétel esetén a hozzájárulás megadása jelölőnégyzet elfogadásával történik.
A hozzájárulás minden esetben önkéntes. Az Adatkezelők szolgáltatásai máshol elérhető, helyettesíthető, az esetek jelentős részében nélkülözhető szolgáltatások, így az Érintett önkéntes elhatározásán alapul, hogy az Adatkezelőkkel kapcsolatba lép, és igénybe veszi a szolgáltatásokat, vagy érdeklődik a szolgáltatások igénybe vétele felől.
Az Adatkezelők az Érintettet minden esetben tájékoztatják az adatkezelésről. A rövidített, az adatkezelés főbb, GDPR-ben meghatározott információit tartalmazó tájékoztatás szerepel az adatok rögzítésére szolgáló nyomtatványon, és az érintettek számára minden esetben elérhető a jelen, teljes körű Tájékoztató is (online felületen, valamint a Franchise partnereknél és Al-franchise partnereknél).
Az Adatkezelők és az Érintett között létrejött szerződés (GDPR 6. cikk (1) bek. b) pont)
Amennyiben az Érintett az Adatkezelőkkel szerződést köt, a szerződésben és a kapcsolódó nyomtatványokon megadja azon adatait, amelyek szükségesek a szerződés teljesítéséhez. A szerződés minden esetben tartalmazza az Érintett tájékoztatását az adatkezelésről.
Amennyiben az Érintett a szerződéskötést megelőzően megadja adatait a szerződés előkészítése, megkötése, az igények felmérése érdekében, az Adatkezelők ezen lépések érdekében kezelik az Érintett adatait, az Érintett tájékoztatása mellett.
A szerződés megkötése minden esetben önkéntes. Az Érintett a szolgáltatásokról és az adatkezelésről szóló tájékoztató alapján hozhat döntést arról, hogy a szerződést megköti-e, vagy sem.
A jelen pont szerinti esetben az adatkezelés a szerződés teljesítése és az Érintett által kezdeményezett lépések megtétele érdekében történik, a GDPR hivatkozott pontja alapján.
Amennyiben az Érintett valamely, az Adatkezelők által kért, vagy szerződésben megjelölt adat kezeléséhez nem járul hozzá, jogában áll az adat megadását megtagadni. Amennyiben az adat kezelése jogszabály alapján kötelező, vagy az adat hiányában a szerződés nem teljesíthető, az adat megadásának hiányában a szerződés nem jön létre. Erről az érintett minden esetben tájékoztatást kap.
Jogszabályban foglalt kötelezettség teljesítése (GDPR 6. cikk (1) bek. c) pont)
Az adatkezelés jogalapja bizonyos esetekben jogszabály rendelkezése. A főbb, adatkezelést is előíró jogszabályok a 1.4. pontban meghatározott jogszabályok.
Az adatkezelő vagy egy harmadik fél jogos érdekeinek érvényesítése (GDPR 6. cikk (1) bek. f) pont)
Amennyiben az adatkezelés szükséges az adatkezelő, vagy harmadik fél jogos érdekének érvényesítéséhez, az adatot az Adatkezelők felhasználják ezen érdek érvényesítése céljából. A jelen bekezdés szerinti adatkezelés kivételes, arra csak egyedi elbírálás (ún. érdekmérlegelési teszt) alapján kerül sor, a jelen Tájékoztatóban meghatározott esetekben. Az Adatkezelők az érdekmérlegelési teszt során minden esetben pontosan azonosítják azt az érdeket, amely indokolja az adatkezelést, és megvizsgálják, hogy más módon (jogalappal) az adatkezelés megvalósítható-e. Az érdekmérlegelési teszt során minden esetben vizsgálatra kerül az érintett jogainak esetleges sérelme, és azon intézkedések lehetősége, amelyek ezen jogok esetleges sérelmét csökkentik, illetve az érintettnek segítséget nyújtanak a jogaik érvényesítésében
III. AZ ADATKEZELÉS LEÍRÁSA, A KEZELT ADATOK KÖRE
3.1. Az adatkezelés folyamatának leírása
Az Adatkezelők a szolgáltatásaikat az országszerte számos helyen elérhető, a Franchise partnerek által használt irodákban, a MEGAHOUSE által fenntartott Weboldalon, valamint a MEGAHOUSE által fenntartott call centeren keresztül valósítják meg.
Amennyiben az Érintett ingatlant kínál, és az értékesítésre (bérbe adásra) megbízást ad, a szerződést minden esetben Partnerekkel köti meg. A szerződés szerinti szolgáltatást a Partnerek, mint Megbízott nyújtják, a MEGAHOUSE által biztosított informatikai, ügyviteli rendszer és dokumentációs háttér használatával. Ebben az esetben az Érintett megadja az adatait a szerződésben, valamint a kapcsolódó nyomtatványokon. A Partnerek munkatársa (Ingatlanértékesítő) rögzíti az adatokat, előkészíti az ingatlan hirdetését, és elkészíti az ingatlanról a hirdetésekben megjelenő fényképeket. Az elkészült hirdetéseket az Adatkezelők közzéteszik a Weboldalon, az egyes, ingatlanközvetítéssel foglalkozó portálokon (pl. ingatlan.com, otthonterkep.hu, stb.), a belső anyagokban, és egyes nyilvános felületeken (kiadványok, irodák hirdetési vitrinek). A hirdetésben személyes adatok nem szerepelnek, csak a Partnerek, és az Ingatlanértékesítő elérhetőségei.
Ingatlan keresése esetén Ingatlanértékesítő rögzíti a MEGAHOUSE által biztosított informatikai rendszerben a kereső igényeit, keresésre vonatkozó megbízás esetén személyes adatait. Amennyiben az Érintett számára ingatlan kerül bemutatásra, az Ingatlanértékesítő a megtekintési tanúsítványon rögzíti az Érintett adatait és a megtekintett ingatlan adatait.
Kapcsolódó szolgáltatás (pl: hitel, energetikai tanúsítvány, értékbecslés) igénybe vétele esetén az Ingatlanértékesítő, vagy a Partnerek továbbítják az Érintett adatait a szolgáltatást nyújtó személy részére.
Amennyiben az Érintett a Weboldalon regisztrál, és megadja adatait, elfogadja a jelen Tájékoztatót. Ezt követően az Érintett igénybe veheti a Weboldal szolgáltatásait, információt kérhet, feliratkozhat hírlevélre.
Amennyiben a megbízási szerződés megszűnik (teljesítéssel, felmondással, lejáratot követően stb), vagy az Érintett a továbbiakban az Adatkezelők szolgáltatását nem veszi igénybe, a hirdetés nem lesz elérhető. Ebben az esetben az Adatkezelők az adatokat törlik, vagy a jelen Tájékoztatóban meghatározott célból, módon, és ideig tárolják.
3.2. Az adatok felvétele
Az Adatkezelők az adatokat elsősorban az Érintettől veszik fel. Az adatfelvétel az alábbi módokon történhet:
Weboldalon keresztül: Amennyiben az Érintett a Weboldalon keresztül lép kapcsolatba az Adatkezelőkkel, adatait a Weboldalon keresztül, az erre szolgáló felületen adja meg. Ebben az esetben az Érintett elfogadja jelen Tájékoztatót, és hozzájárulást ad a jelen Tájékoztató szerinti adatkezeléshez. Az adatkezeléshez való hozzájárulásról az Érintettnek nyilatkoznia kell (jelölőnégyzet elfogadásával).
A Partnereken keresztül: Amennyiben az Érintett a Partnerekkel lép kapcsolatba, az adatokat a Partnerek rögzítik, az erre a célra rendszeresített nyomtatványokon keresztül. Az Érintettnek ebben az esetben is nyilatkoznia kell arról, hogy adatai kezeléséhez hozzájárul.
Más forrásokból történő adatfelvétel: Az Adatkezelők az Érintett által közzétett (pl. hirdetésben szereplő) adatokat (telefonszám, e-mail cím) rögzítik kapcsolatfelvétel céljából. Egyéb esetben az Adatkezelők adatokat más forrásból kizárólag akkor vesznek át, ha erre törvény felhatalmazást ad. Az Adatkezelők a nyilvános, bárki számára hozzáférhető adatállományokból (így különösen az ingatlan-nyilvántartásból) is vesznek fel adatokat, amennyiben azok szükségesek az adatkezelés céljának eléréséhez.
3.3. A kezelt adatok köre
Az Adatkezelők a természetes személyek alábbi adatait kezelik:
A. Azonosításhoz szükséges adatok: az Érintett családi és utóneve, születési családi és utóneve, születési helye, ideje, anyja születési neve, állandó lakcíme, ennek hiányában tartózkodási helye, azonosító okmányának típusa és száma. Az adatok kezelésének célja az Érintett személy azonosítása, a vele való kapcsolattartás, szükség esetén az igények érvényesítése. Az adatok megadása szerződéskötés, egyéb, jogviszonyt keletkeztető kapcsolat (pl. megtekintési tanúsítvány aláírása) esetén kötelező, ezek hiányában a szerződés nem köthető meg, figyelemmel arra, hogy az adatok hiányában nem lehetséges a szerződés teljesítése, a szerződésből származó igények érvényesítése.
B. Ügyfél-átvilágítási kötelezettséggel kapcsolatos adatok: a fenti a. pont szerinti adatok mellett az Érintett állampolgársága, az a körülmény, hogy az Érintett a saját nevében, vagy más tényleges tulajdonos nevében jár el, utóbbi esetben a tényleges tulajdonos családi és utóneve, születési családi és utóneve, állampolgársága, születési helye, ideje, állandó lakcíme, ennek hiányában tartózkodási helye, valamint az érintett közszereplői minőségére vonatkozó adat. Amennyiben az ügyfél nem természetes személy, az adatkezelő kezeli a képviseletre jogosult nevét, beosztását, kézbesítési megbízott azonosításra alkalmas adatait, a tulajdonosi érdekeltség jellegére és mértékére vonatkozó adatot. Az adatok megadása kötelező, amennyiben az Adatkezelők és az Érintett között üzleti kapcsolat jön létre. Az adatkezelés jogalapja a Pmt. szerinti kötelezettség teljesítése.
C. Kapcsolattartáshoz szükséges adatok: név, cím, telefonszám, e-mail cím. Az adatok megadása az Adatkezelők és az Érintett közötti kapcsolatfelvételt és kapcsolattartást szolgálják. Amennyiben az Érintett nem adja meg valamely, kapcsolattartásra szolgáló adatát, vele az Adatkezelők nem tudnak kapcsolatba lépni, és nem tudják a szolgáltatást nyújtani. Így amennyiben az Érintett az Adatkezelők szolgáltatásait igénybe kívánja venni, valamely, kapcsolattartáshoz szükséges adatát meg kell adnia.
D értékesítéssel kapcsolatos lényeges tulajdonságai, árral (eladási árral vagy bérleti díjjal) kapcsolatos információk. Amennyiben az Érintett ingatlant kínál, az adatok megadása kötelező, ezek hiányában ugyanis az Adatkezelők nem tudják a szolgáltatást nyújtani, az ingatlant hirdetni, érdeklődőknek kínálni.
E. Ingatlanról készült fényképek: az Ingatlanértékesítő az ingatlan felvétele során fényképet készít az ingatlanról, amely a hirdetésben megjelenik. A fénykép készítése minden esetben az Érintett tudtával és beleegyezésével történik, oly módon, hogy a képen személyes tárgyak lehetőleg ne szerepeljenek. A fénykép készítése nem kötelező, enélkül azonban az ingatlan értékesítése nehezebbé válik. A fénykép az Adatkezelők informatikai rendszerében tárolásra kerül.
F. Keresett ingatlanra vonatkozó adatok: amennyiben az Érintett ingatlant keres, az Adatkezelők kezelik az Érintett által megadott, a keresett ingatlanra vonatkozó adatokat (pl. alapterület, ár, elhelyezkedés).
G. A rögzített telefonbeszélgetés: az Érintett és az Adatkezelők közötti telefonbeszélgetéseket az Adatkezelők rögzíthetik, ha az a hívás jellegéből adódóan szükséges. A rögzítés minden esetben az Érintett hozzájárulásával történik, a rögzítésről az Érintett tájékoztatást kap. Amennyiben az Érintett nem járul hozzá a rögzítéshez, lehetséges a rögzítés nélküli ügyintézés. A rögzítés célja panaszkezelés, fogyasztóvédelem, az Érintett jognyilatkozatainak rögzítése. Az adatkezelés jogalapja az Érintett hozzájárulása, amelyet azzal ad meg, hogy a rögzítésről szóló tájékoztatást követően a beszélgetést folytatja.
H. Díjfizetéssel kapcsolatos adatok: Amennyiben az Adatkezelők számlát állítanak ki, kezelik a számla kiállításához szükséges adatot (vevő neve, címe, szolgáltatás meghatározása, esedékesség, díj összege).
I. Igényekkel kapcsolatos adatok: Amennyiben az érintett és az Adatkezelők között jogvita alakul ki (így különösen az érintett a díjat nem fizeti meg, vagy az ingatlant a Partnerek által közvetített vevőnek a Partnerek megkerülésével adja el), az Adatkezelők kezelik az igény jogalapjára, természetére, mértékére vonatkozó adatokat, valamint az igény érvényesítését lehetővé tevő bizonyítékokat.
3.4. Az adatkezelés helye
A papíralapú dokumentumokat minden esetben a Franchise partner őrzi. Valamennyi adat rögzítésre kerül a MEGAHOUSE rendszerében, ide kerülnek feltöltésre az egyes dokumentumokról készült képek, így az adatkezelés helye a MEGAHOUSE által biztosított informatikai rendszer, ezáltal a MEGAHOUSE székhelye, telephelye.
IV. AZ EGYES ADATKEZELÉSEK
4.1. Ingatlan értékesítéséhez, bérbeadáshoz kapcsolódó adatkezelés
Az adatkezelés leírása: Az Adatkezelők elsődleges szolgáltatása az ingatlanok közvetítése, az ingatlanértékesítési, bérbeadási tevékenység elősegítése. Ezen szolgáltatást az Érintettel kötött szerződés alapján Partnerek nyújtják, a MEGAHOUSE informatikai, ügyviteli rendszerének felhasználásával. Az adatkezelés során sor kerül a szerződés megkötésére, az adatok rögzítésére, az ingatlan hirdetésére, bemutatására, érdeklődők felkutatására.
Kezelt adatok köre: A kezelt adatok a fenti 3.4. pont a-e. alpontja szerinti adatok.
Az adatkezelés célja:
Az Érintett személyének azonosítása, az Érintettel való kapcsolatfelvétel és kapcsolattartás;
Az Érintett által értékesíteni, bérbe adni kívánt ingatlan rögzítése az informatikai rendszerben, az értékesítés (bérbe adás) elősegítése;
Az ingatlanra vonatkozó hirdetések közzététele, a lehetséges vevő (bérlők) felkutatása;
Az ingatlant kereső és kínáló ügyfelek között a kapcsolat létrehozása, az ingatlanra vonatkozó ügylet létrejöttének elősegítése;
Egyeztetés a felek között az ügylettel kapcsolatban;
Az Érintett és az Adatkezelők között a megbízási szerződés létrehozása és teljesítése;
Kapcsolódó szolgáltatások (pl. energetikai tanúsítvány, értékbecslés, ingatlan felkészítése bemutatásra) nyújtása, ezen szolgáltatásokat nyújtó személyekkel való kapcsolatfelvétel elősegítése;
A jogviszonyból származó jogok gyakorlása, kötelezettségek teljesítése.
Az adatkezelés jogalapja: Az adatkezelés jogalapja az Érintett hozzájárulása, valamint az Érintett és az Adatkezelők közötti szerződés teljesítése, az Érintett által kezdeményezett lépések megtétele.
Az adatkezelés időtartama: Az adatkezelés időtartama a jogviszony megszűnését követő nyolc év. Az időtartamot az indokolja, hogy a jogviszony megszűnését követően igények érvényesítésére sor kerülhet mindkét fél részéről. A Pmt. hatálya alá tartozó adatok tekintetében a megőrzési idő ugyancsak nyolc év.
4.2. Ingatlan kereséséhez kapcsolódó adatkezelés
Az adatkezelés leírása: Amennyiben olyan Érintett lép kapcsolatba az Adatkezelőkkel, aki ingatlant szeretne vásárolni (bérbe venni), az Adatkezelők (elsősorban a Partnerek) rögzítik az Érintett adatait, és a keresett ingatlanra vonatkozó adatokat. Amennyiben az Érintett a Partnerekkel szerződést köt, az Adatkezelők a szerződés alapján járnak el a keresés során.
Kezelt adatok köre: A kezelt adatok a fenti 3.4. pont c. és f. alpontja szerinti adatok, szerződéskötés esetén az a-b. alpont szerinti adatok.
Az adatkezelés célja:
Az Érintett személyének azonosítása, az Érintettel való kapcsolatfelvétel és kapcsolattartás;
Ingatlant kereső Érintett esetén az igények feltárása;
Az ingatlant kereső és kínáló ügyfelek között a kapcsolat létrehozása, az ingatlanra vonatkozó ügylet létrejöttének elősegítése;
Egyeztetés a felek között az ügylettel kapcsolatban;
Szükség esetén a hiteligény felmérése, és a pénzügyi szakértővel való kapcsolat felvétele;
Az Érintett és az Adatkezelők között a megbízási szerződés létrehozása és teljesítése;
A jogviszonyból származó jogok gyakorlása, kötelezettségek teljesítése.
Az adatkezelés jogalapja: Az adatkezelés jogalapja az Érintett hozzájárulása, szerződéskötés esetén az Érintett és az Adatkezelők közötti szerződés teljesítése, az Érintett által kezdeményezett lépések megtétele.
Az adatkezelés időtartama: Amennyiben nem jön létre szerződés, az Adatkezelő törli az adatokat, ha a keresés eredménytelen, és az adatkezelésnek más célja nincs. Szerződéskötés esetén az adatkezelés időtartama a jogviszony megszűnését követő öt év. Az időtartamot az indokolja, hogy a jogviszony megszűnését követően igények érvényesítésére sor kerülhet.
4.3. Megtekintési tanúsítvány
Az adatkezelés leírása: Amennyiben az Érintett számára a Partnerek ingatlant mutatnak be, a megtekintési tanúsítványon kerül sor annak rögzítésére, hogy kinek, mely ingatlan bemutatására került sor. Utóbb a megtekintési tanúsítvány szolgál annak bizonyítására, hogy az adott ingatlant a Partnerek mutatták be az Érintett számára.
Kezelt adatok köre: A kezelt adatok a fenti 3.4. pont a. és c. alpontja szerinti adatok, valamint a bemutatott ingatlan címe és/vagy helyrajzi száma.
Az adatkezelés célja:
Az Érintett személyének azonosítása, az Érintettel való kapcsolatfelvétel és kapcsolattartás;
Az ingatlant kereső és kínáló ügyfelek között a kapcsolat létrehozása, az ingatlanra vonatkozó ügylet létrejöttének elősegítése;
Egyeztetés a felek között az ügylettel kapcsolatban;
Szükség esetén a hiteligény felmérése, és a pénzügyi szakértővel való kapcsolat felvétele;
A jogviszonyból származó jogok gyakorlása, kötelezettségek teljesítése.
Az adatkezelés jogalapja: Az adatkezelés jogalapja az érintett hozzájárulása, szerződéskötés esetén az érintett és az Adatkezelők közötti szerződés teljesítése, az Érintett által kezdeményezett lépések megtétele.
Az adatkezelés időtartama: Az adatokat az Adatkezelő a jogviszony megszűnésétől számított öt évig őrzi. Az időtartamot az indokolja, hogy a jogviszony megszűnését követően igények érvényesítésére sor kerülhet.
4.4. Igények, követelések érvényesítése
Az adatkezelés leírása: Amennyiben az Adatkezelők és az Érintett között jogvita alakul ki, és ezen vita során valamely fél a másik féllel szemben (anyagi vagy egyéb természetű) igényt kíván érvényesíteni, az ehhez szükséges adatok felhasználhatók az igényérvényesítés során. Az Adatkezelők részéről a leggyakoribb igényérvényesítési indokok: a megkerülés (amikor az Adatkezelők által kapcsolatba került Érintettek az Adatkezelők megkerülésével létesítenek jogviszonyt kifejezetten azzal a céllal, hogy megkerüljék az Adatkezelőket, ezáltal mentesüljenek a díjfizetés kötelezettsége alól), fizetési kötelezettség megtagadása (amikor az Érintett a díjfizetési kötelezettségének nem tesz eleget, azt megtagadja). Az Adatkezelők ebben az esetben felhasználják a kezelt adatokat abból a célból, hogy bizonyítsák az igény megalapozottságát, és szükség esetén az igényt jogi úton érvényesítsék. Ennek során sor kerülhet az igény bizonyítására, a követelés jogi úton történő behajtására.
A MEGAHOUSE eljárása a kintlévőségek érvényesítése során: Figyelemmel az Adatkezelők közötti kapcsolatra, a kintlévőségek érvényesítését az Adatkezelők abban az esetben is közösen végzik, amennyiben az Érintett a Partnerek felé nem teljesíti kötelezettségeit. Ebben az esetben a Partnerek megbízhatják a MEGAHOUSE-t az igény érvényesítésével, a kintlévőség kezelésével, a MEGAHOUSE pedig megbízottként jár el. Amennyiben ezen engedményezésre sor kerül, a MEGAHOUSE a Partnerek helyébe lép, és az igényt jogosultként érvényesíti.
Kezelt adatok köre: A kezelt adatok köre az adott igény természetétől, jogalapjától, jellegétől függ, a fenti 3.4. pont szerinti valamennyi adat felhasználásra kerülhet, ha az igény érvényesítése azt szükségessé teszi.
Az adatkezelés célja:
A jogviszonyból származó jogok gyakorlása, kötelezettségek teljesítése;
Szerződésszegés (pl. megkerülés) esetén az igények érvényesítése.
Az adatkezelés jogalapja: Az adatkezelés jogalapja részben jogszabály rendelkezése, azon jogszabályoké, amelyek az igény érvényesítését a felek közötti jogviszonyban lehetővé teszi. Amennyiben az igény szerződésen alapul, az adatkezelés jogalapja az érintett és az Adatkezelők közötti szerződés teljesítése, Az adatkezelés jogalapja emellett az adatkezelő jogos érdekeinek érvényesítése
Az adatkezelés időtartama: Az adatkezelés az igény érvényesítéséig tart, ennek hiányában addig, amíg az igény jogi úton érvényesíthető. Az Adatkezelők törlik az adatokat, ha az igény nem érvényesíthető, így különösen, ha az elévült, vagy az igény érvényesítése sikertelen.
Érdekmérlegelési teszt rövid bemutatása:
A jelen pont szerinti adatkezelés esetén az Adatkezelők érdeke az, hogy a közöttük és az Érintettek között létrejött szerződés teljesítése esetén hozzájussanak az őket megillető ellenszolgáltatáshoz.
Minden esetben olyan igény érvényesítését szolgálja az adatkezelés, amely szerződésen, vagy valamely fél kötelezettségvállalásán alapul (pl. megtekintő személy kötelezettségvállalása arra, hogy a megtekintett ingatlant az adatkezelőkön keresztül vásárolja meg); a szerződés megkötése, vagy a kötelezettségvállalás minden esetben az Érintettek önkéntes elhatározása alapján történt. Vagyis az Érintettek vállalták a kötelezettséget arra, hogy a szolgáltatás igénybe vétele esetén az Adatkezelőket nem kerülik meg, és részükre a szerződés szerinti díjat megfizetik.
Az Adatkezelőknek jogos, szerződésen alapuló érdeke és joga, hogy ezen díjhoz hozzájusson.
Amennyiben az Érintett önkéntesen nem teljesíti az Adatkezelők igényét, azokat az Adatkezelők kénytelenek jogi úton, az irányadó jogszabályokban rögzítettek szerint érvényesíteni, vagyis nincs más mód a cél elérésére.
Az igény érvényesítésének feltétele azon adatok felhasználása, amelyek szükségesek az igény alátámasztásához, bizonyításához, a szükséges eljárások megindításához; ezen adatok felhasználása nélkül az igény nem érvényesíthető, mivel az Adatkezelők nem tudják azt bizonyítani, az eljárásokat megindítani.
Figyelemmel arra, hogy az adatkezelést kiváltó ok az Érintett jogellenes eljárása, és az adatok felhasználására jogszabályban meghatározott módon (eljárásban) kerül sor, az adatkezelés nem tekinthető aránytalan korlátozásnak.
A felek mellérendelt viszonyára és egyenlő elbánására figyelemmel, amennyiben az érintett kíván igényt érvényesíteni az Adatkezelőkkel szemben, az Adatkezelők az általuk kezelt adatokat az érintettnek átadják.
4.5. Reklámozás
Az adatkezelés leírása: Amennyiben az Érintett ahhoz hozzájárul, az Adatkezelők megkeresik reklámokkal. A reklámok (hírlevelek) minden esetben az Adatkezelők szolgáltatásairól szólnak, vagy olyan kapcsolódó szolgáltatásokról, termékekről, amelyek az Adatkezelők szolgáltatásához szorosan kapcsolódnak. A reklámok (hírlevelek) küldésére kizárólag akkor kerül sor, ha az Érintett ahhoz hozzájárult, vagy önálló nyilatkozatban, vagy nyomtatványon a vonatkozó jelölőnégyzet útján, vagy a Weboldalon keresztül. Az Adatkezelők a reklámokat nem értékesítik, tehát nem küldenek ki reklámot harmadik személy által fizetett díj ellenében.
Kezelt adatok köre: A kezelt adatok a fenti 3.4. pont c. alpontja szerinti adatok.
Az adatkezelés célja:
Az Érintett külön hozzájárulása esetén reklámozás.
Az adatkezelés jogalapja: Az adatkezelés jogalapja az Érintett hozzájárulása.
Az adatkezelés időtartama: Az adatkezelés addig tart, amíg az Érintett a hozzájárulását vissza nem vonja, vagy megtiltja a további, reklámozási célú adatkezelést, vagy tiltakozik a reklámozási célú adatkezelés ellen. Amennyiben az érintett adatai törlésre kerülnek, a reklámozási célú adatkezelés is megszűnik.
4.6. Pénzmosás és terrorizmus finanszírozása megelőzése érdekében végzett adatkezelés
Az adatkezelés leírása: Az Adatkezelők a Pmt. szerinti ügyfél-átvilágítási kötelezettség érdekében kezelik az Érintett személyes adatait. Az üzleti kapcsolat létesítésekor a Partner rögzíti az Érintett Pmt. által meghatározott adatait, és amennyiben fennáll valamely, a Pmt.-ben meghatározott kötelezettség, adatot szolgáltatnak az illetékes hatóság részre.
Kezelt adatok köre: A kezelt adatok a fenti 3.4. pont a-b. alpontja szerinti adatok.
Az adatkezelés célja:
Jogszabályban elrendelt kötelezettségek teljesítése.
Az adatkezelés jogalapja: Az adatkezelés jogalapja a Pmt. ellenőrzést, adatrögzítést, nyilvántartásba vételt előíró rendelkezései.
Az adatkezelés időtartama: Az adatkezelés időtartama a Pmt. 56. § alapján az üzleti kapcsolat megszűnésétől, illetve az ügyleti megbízás teljesítésétől számított nyolc év.
4.7. Weboldal adatkezelése
Az adatkezelés leírása: Amennyiben az Érintett a Weboldalon regisztrál, és megadja adatait, azokat a MEGAHOUSE, mint a Weboldal felhasználója kezeli. Az adatkezelés célja – az Érintett által igénybe vett szolgáltatásról függően – hírlevél küldése, vagy információ kérése.
Kezelt adatok köre: A kezelt adatok a fenti 3.4. pont c-e. alpontja szerinti adatok.
Az adatkezelés célja:
Az Érintett személyének azonosítása, az Érintettel való kapcsolatfelvétel és kapcsolattartás;
Az adatkezelés jogalapja: Az adatkezelés jogalapja az Érintett hozzájárulása.
Az adatkezelés időtartama: Az adatkezelés addig tart, amíg az Érintett a hozzájárulását vissza nem vonja, vagy az adatkezelés célja nyilvánvalóan megszűnik.
4.8. Számlázással összefüggő adatkezelés
Az adatkezelés leírása: Amennyiben az Érintettnek díjfizetési kötelezettsége keletkezik, az arra jogosult adatkezelő (elsősorban a Partnerek) kiállítja az erről szóló számlát, és azt elhelyezi a könyvelési adatok között.
Kezelt adatok köre: A kezelt adatok a fenti 3.4. pont h. alpontja szerinti adatok.
Az adatkezelés célja:
Jogszabályban elrendelt kötelezettségek teljesítése.
Az adatkezelés jogalapja: Az adatkezelés jogalapja a számvitelről szóló 2000. évi C. törvény.
Az adatkezelés időtartama: Az adatkezelés időtartama a számla kiállításától számított nyolc év.
4.9. Együttműködés az ingatlanpiac MEGAHOUSE-tól független szereplőivel ( Egyéb ingatlanirodák, Ingatlanszoftverben szereplő társirodák, Ingatlan Megosztó Rendszerek stb)
Az adatkezelés leírása: A Megahouse franchise hálózat együttműködik más ingatlanközvetítő hálózatokkal és ingatlanpiaci szereplőkkel az ingatlanok értékesítése érdekében. A Megahouse franchise az Ingatlan Megosztó Rendszeren keresztül, az Ingatlanszoftver rendszeren keresztül és egyéb adatbázisokból érkező ingatlanokat ügyfelei részére kiajánlhatják. Ennek során az ingatlanok adatait az Adatkezelők elérhetővé teszik a franchise partnerek és ügyfelek számára. Ekkor személyes adatok nem szerepelnek sehol, csak azon adatok, amelyek az ingatlanra vonatkozó hirdetésben egyébként is közzétételre kerülnek. Amennyiben az érdeklődő ilyen adatbázishoz tartozó ingatlanra érdeklődik, az ingatlanközvetítő felveszi a kapcsolatot azon Ingatlan értékesítőjével, akihez az ingatlan tartozik. A franchise értékesítő az Érintett személyes adataihoz nem fér hozzá. Az ingatlan bemutatása minden esetben a Partner Ingatlanértékesítője jelenlétében történik.
A Megaouse franchise hálózat együttműködik más ingatlanközvetítő hálózatokkal és ingatlanpiaci szereplőkkel az ingatlanok értékesítése érdekében. Amennyiben az érdeklődő személy együttműködő ingatlanközvetítőn keresztül érkezik, az együttműködő ingatlanközvetítő felveszi a kapcsolatot azon Ingatlanértékesítővel, akihez az ingatlan tartozik. Az együttműködésen keresztül belépő ezen ingatlanközvetítő az Érintett személyes adataihoz nem fér hozzá. Az ingatlan bemutatása minden esetben a Partner Ingatlanértékesítője jelenlétében történik.
Kezelt adatok köre: A kezelt adatok a fenti 3.4. pont d-e. alpontja szerinti adatok.
Az adatkezelés célja:
Az Érintett által értékesíteni, bérbe adni kívánt ingatlan rögzítése az informatikai rendszerben, az értékesítés (bérbe adás) elősegítése;
Az ingatlanra vonatkozó hirdetések közzététele, a lehetséges vevő (bérlők) felkutatása;
Ingatlant kereső Érintett esetén az igények feltárása;
Az ingatlant kereső és kínáló ügyfelek között a kapcsolat létrehozása, az ingatlanra vonatkozó ügylet létrejöttének elősegítése.
Az adatkezelés jogalapja: Az adatkezelés jogalapja az Érintettel kötött szerződés. Amennyiben az Érintett szerződést köt a 4.1. pontban írtak szerint, és ezzel összefüggésben megbízást ad kizárólagos értékesítésre, az ingatlan adatai bekerülnek az IMR-be, valamint áttöltésre kerülnek a partner hálózatok rendszereibe.
Az adatkezelés időtartama: Amennyiben az Érintett a kizárólagosságot visszavonja, vagy a megbízás megszűnik, az adatok kezelése az együttműködésekben megszűnik.
4.10. Pénzügyi termékek közvetítésével kapcsolatos adatkezelés
Az adatkezelés leírása: Amennyiben az Érintett vásárláshoz hitelt kíván felvenni, a Partner rögzíti az Érintett igényeit, és az adatokat átadja az Adatkezelőkkel kapcsolatban álló pénzügyi szakértő ( pl GV HITELCENTRUM) részére. Ezt követően a pénzügyi szakértő veszi fel a kapcsolatot az Érintettel.
Kezelt adatok köre: A kezelt adatok a fenti 3.4. pont c. alpontja szerinti adatok, valamint a felvenni kívánt hitel összege.
Az adatkezelés célja:
Szükség esetén a hiteligény felmérése, és a pénzügyi szakértővel való kapcsolat felvétele.
Az adatkezelés jogalapja: Az adatkezelés jogalapja az Érintett hozzájárulása.
Az adatkezelés időtartama: Az adatkezelés egyszeri adatátadást jelent, amelynek során a Partner átadja a kapcsolatfelvételhez szükséges adatokat a pénzügyi szakértő részére.
4.11. Telefonbeszélgetések rögzítése
Az adatkezelés leírása: Az Adatkezelők az Érintettel folytatott telefonbeszélgetéseket rögzíthetik. A rögzítést megelőzően a rögzítésről az Érintett tájékoztatást kap, és amennyiben a rögzítéshez nem járul hozzá, lehetősége van a személyes, e-mailben, vagy postai úton történő ügyintézésre. Az Érintett a rögzítésről, annak körülményeiről, a rögzített hívások felhasználásáról tájékoztatást kérhet, kérésre az Adatkezelők biztosítják a hangfelvétel meghallgatását, illetve kérésre az ügyfélnek a hangfelvételről készült leiratot átadják, vagy másolatot készítenek a beszélgetésről, és azt az ügyfélnek olyan formában adják át, hogy az ügyfél azt tudja használni.
Kezelt adatok köre: A kezelt adatok a fenti 3.4. pont g. alpontja szerinti adatok.
Az adatkezelés célja:
Panaszkezelés, fogyasztóvédelem;
A jogviszonyból származó jogok gyakorlása, kötelezettségek teljesítése.
Az adatkezelés jogalapja: Az adatkezelés jogalapja az Érintett hozzájárulása, amelyet az Érintett azzal ad meg, hogy a rögzítésről szóló tájékoztatást követően a hívást folytatja.
Az adatkezelés időtartama: A rögzített hívásokat az Adatkezelők legfeljebb három hónapig őrzik.
4.12. A Megaouse hálózaton belüli adatkezelés
az adatkezelés leírása: A Megahouse franchise hálózat – a fent írtak szerint –, országos hálózat, amelyhez számos Franchise és Al-franchise partner tartozik. Az országos hálózat előnyeinek kihasználása érdekében az ingatlanok adatai szerepelnek a MEGAHOUSE által biztosított és általa működtetett informatikai rendszerben, amelyhez a Partnerek mindegyike hozzáfér. Amennyiben a kereső ügyfél Partnerek valamelyikéhez köthető Ingatlanértékesítővel kapcsolatba lép, és olyan ingatlant kíván megvásárolni, amely más Partnerek által kerültek rögzítésre az informatikai rendszerben, az Érintettel kapcsolatba kerülő Ingatlanértékesítő megkeresi az ingatlant rögzítő Partnereket. A megbízási szerződést kötő ügyfél személyes adataihoz csak azon Partnerek férnek hozzá, amelyek a megbízási szerződést megkötötték és az ingatlant rögzítették. Más Partnerek az ingatlan – egyébként is közzétételre kerülő – adataihoz férnek hozzá, illetve amennyiben az adott ingatlanra érdeklődőt tud ajánlani, hozzáférhet a megbízási szerződést adó ügyfél nevéhez és telefonszámához. Az informatikai rendszer rögzíti, hogy a telefonszámot mely Partnerek és Ingatlanértékesítőik kérik le.
Kezelt adatok köre: A kezelt adatok a fenti 3.4. pont d-e. alpontja szerinti adatok, bemutatás esetén az Érintett telefonszáma.
Az adatkezelés célja:
- Az Érintett által értékesíteni, bérbe adni kívánt ingatlan rögzítése az informatikai rendszerben, az értékesítés (bérbe adás) elősegítése;
- Az ingatlanra vonatkozó hirdetések közzététele, a lehetséges vevő (bérlők) felkutatása;
- Az ingatlant kereső és kínáló ügyfelek között a kapcsolat létrehozása, az ingatlanra vonatkozó ügylet létrejöttének elősegítése.
Az adatkezelés jogalapja: Az adatkezelés jogalapja az Érintett hozzájárulása, valamint az Érintett és az Adatkezelők közötti szerződés teljesítése, az Érintett által kezdeményezett lépések megtétele.
Az adatkezelés időtartama: Az adatok az informatikai rendszerben addig szerepelnek, amíg a megbízási szerződés meg nem szűnik.
4.13. Adatkezelés a MEGAHOUSE, a Franchise partner és az Al-franchise partner közötti jogviszony megszűnése esetén
Az adatkezelés leírása: Amennyiben a MEGAHOUSE és a Franchise partner között a jogviszony megszűnik, és a Franchise partner kikerül a Megaouse franchise hálózatból, a már rögzített adatokat kizárólag a MEGAHOUSE kezeli. Amennyiben az adott területen újabb Franchise partner kezdi meg működését, az új Franchise partner hozzáfér az ingatlan adataihoz, és az Érintett telefonszámához. Ebben az esetben az újonnan belépő Franchise partner felhívhatja az Érintettet abból a célból, hogy vele szerződést kössön.
Amennyiben az Al-franchise partner és a MEGAHOUSE valamint a Franchise partner között a jogviszony megszűnik, és az Al-franchise partner kikerül a Megahouse franchise hálózatból, a már rögzített adatokat kizárólag a Franchise partner és MEGAHOUSE kezeli. Franchise partner hozzáfér az ingatlan adataihoz és az Érintett telefonszámához, aki azt a megbízási szerződés alapján egy általa kijelölt új Al-franchise partner részére átadhatja. Ebben az esetben az újonnan belépő Al-franchise partner felhívhatja az Érintettet abból a célból, hogy vele szerződést kössön.
Kezelt adatok köre: A kezelt adatok a fenti 3.4. pont d-e. alpontja szerinti adatok, valamint az Érintett telefonszáma.
Az adatkezelés célja:
Az Érintett személyének azonosítása, az Érintettel való kapcsolatfelvétel és kapcsolattartás;
Az Érintett által értékesíteni, bérbe adni kívánt ingatlan rögzítése az informatikai rendszerben, az értékesítés (bérbe adás) elősegítése;
Az ingatlanra vonatkozó hirdetések közzététele, a lehetséges vevő (bérlők) felkutatása;
Az Érintett és az Adatkezelők között a megbízási szerződés létrehozása és teljesítése;
A jogviszonyból származó jogok gyakorlása, kötelezettségek teljesítése.
Az adatkezelés jogalapja: Az adatkezelés jogalapja az Érintett hozzájárulása, valamint az Érintett és az Adatkezelők közötti szerződés teljesítése, az Érintett által kezdeményezett lépések megtétele.
Az adatkezelés időtartama: Az adatokkezelés időtartamára a 4.1. pontban írtak irányadók.
V. EGYÉB, AZ ADATKEZELÉSSEL KAPCSOLATOS INFORMÁCIÓK
5.1. Adattovábbítás
Az Adatkezelők személyes adatot csak akkor továbbítanak harmadik személy részére, ha ahhoz az Érintett egyértelműen – a továbbított adatkör és az adattovábbítás címzettje ismeretében – hozzájárult, vagy az adattovábbításra törvény felhatalmazást ad.
5.2. Adatfeldolgozás
Az Adatkezelők a tevékenységük ellátásához jogosultak adatfeldolgozót igénybe venni. Az adatfeldolgozók önálló döntést nem hoznak, az adatkezelés során az Adatkezelőkkel kötött írásbeli szerződés alapján, a szerződésben meghatározottak és az Adatkezelők utasítása szerint, az Adatkezelők nevében járnak el. Az Adatkezelők ellenőrzik az adatfeldolgozók munkáját. Az adatfeldolgozók további adatfeldolgozó igénybe vételére csak az Adatkezelők hozzájárulásával jogosultak.
Az Adatkezelők adatfeldolgozóként igénybe veszik a velük szerződéses jogviszonyban álló Ingatlanértékesítőket.
5.3. Adatbiztonság
Az Adatkezelők gondoskodnak az adatok biztonságáról, megteszik azokat a technikai és szervezési intézkedéseket és kialakítják azokat az eljárási szabályokat, amelyek az adatbiztonság követelményének érvényesülését biztosítják. Az Adatkezelők az általuk kezelt adatokat az irányadó jogszabályoknak megfelelően tartják nyilván, biztosítva, hogy az adatokat csak azok a munkavállalók, és egyéb, az Adatkezelők érdekkörében eljáró személyek ismerhessék meg, akiknek erre munkakörük, feladatuk ellátása érdekében szükségük van.
Az Adatkezelők az informatikai védelemmel kapcsolatos feladatai körében gondoskodnak különösen:
A jogosulatlan hozzáférés elleni védelmet biztosító intézkedésekről, ezen belül a szoftver és hardver eszközök védelméről, illetve a fizikai védelemről (hozzáférés védelem, hálózati védelem);
Az adatállományok helyreállításának lehetőségét biztosító intézkedésekről, ezen belül a rendszeres biztonsági mentésről és a másolatok elkülönített, biztonságos kezeléséről (tükrözés, biztonsági mentés);
Az adatállományok vírusok elleni védelméről (vírusvédelem);
Az adatállományok, illetve az azokat hordozó eszközök fizikai védelméről, ezen belül a tűzkár, vízkár, villámcsapás, egyéb elemi kár elleni védelemről, illetve az ilyen események következtében bekövetkező károsodások helyreállíthatóságáról (archiválás, tűzvédelem).
Az Adatkezelők a papíralapú nyilvántartások védelme érdekében megteszik a szükséges intézkedéseket különösen a fizikai biztonság, illetve tűzvédelem tekintetében.
A munkavállalók, megbízottak, és egyéb, az Adatkezelők érdekében eljáró személyek az általuk használt, vagy birtokukban lévő, személyes adatokat is tartalmazó adathordozókat, függetlenül az adatok rögzítésének módjától, kötelesek biztonságosan őrizni és védeni.
5.4. Technikai adatok és cookie-k kezelése
Amennyiben az érintett meglátogatja a Weboldalt, a Weboldalhoz kapcsolódó rendszer automatikusan rögzíti a felhasználó számítógépének IP-címét, a látogatás kezdő időpontját, illetve egyes esetekben – a számítógép beállításától függően – a böngésző és az operációs rendszer típusát. Az így rögzített adatok egyéb személyes adatokkal nem kapcsolhatók össze. Az adatok kezelése kizárólag statisztikai célokat szolgál.
A cookie-k lehetővé teszik a Weboldal számára, hogy felismerje a korábbi látogatókat. A cookie-k a MEGAHOUSE-t, mint a Weboldal üzemeltetőjét segítik a Weboldal optimalizálásában, abban, hogy a Weboldal szolgáltatásait a felhasználók szokásának megfelelően alakítsa ki. A cookie-k alkalmasak továbbá arra, hogy
- megjegyezzék a beállításokat, így nem kell azokat a felhasználónak újra rögzítenie, ha egy új oldalra lép,
- emlékeznek a korábban bevitt adatokra, ezért azokat nem kell újra begépelni,
- elemzik a honlap használatát annak érdekében, hogy az így nyert információk felhasználásával végrehajtott fejlesztések eredményeként az a lehető legnagyobb mértékben a felhasználó elvárásai szerint működjön, a felhasználó könnyen megtalálja a keresett információt, és
- figyelemmel kísérik hirdetéseink hatékonyságát.
Amennyiben a Weboldalon a MEGAHOUSE külső webes szolgáltatások segítségével jelenít meg különféle tartalmakat, az néhány olyan cookie tárolását eredményezheti, melyeket nem a MEGAHOUSE felügyel, így nincs befolyása arra, hogy ezek a weboldalak, illetve külső domainek milyen adatokat gyűjtenek. Ezen cookie-król az adott szolgáltatásra vonatkozó szabályzatok adnak tájékoztatást.
A Megahouse a cookie-kat felhasználja arra, hogy az érintettek felé a Google és a Facebook útján reklámokat jelenítsen meg. Az adatkezelés emberi beavatkozás nélkül történik.
A felhasználó beállíthatja webes keresőjét úgy, hogy elfogadjon minden cookie-t, elutasítsa mindet, vagy értesítse a felhasználót, ha cookie érkezik a gépére. A beállítási lehetőségek általában a böngésző „Opciók” vagy „Beállítások” menüpontjában találhatók.
Az angol nyelvű www.aboutcookies.org weboldalon található részletes tájékoztató szintén segít a különböző böngészőkben történő beállításokban
5.5. Az adatkezelés időtartama
Az Adatkezelők a törlésre vonatkozó szabályok kialakításával és betartásával biztosítják, hogy a személyes adatok kezelésének időtartama ne haladja meg a szükséges és jogszerű mértéket. Az adatok törlésére az alábbi esetekben kerül sor:
a. A személyes adatokra már nincs szükség abból a célból, amelyből azokat gyűjtötték vagy más módon kezelték. Amennyiben az adatkezelés célja megszűnt, és az adat kezelését jogszabály nem teszi kötelezővé, az adatot az Adatkezelők törlik.
b. Az Érintett a hozzájárulását visszavonja. Amennyiben az Érintett a hozzájárulását visszavonja, vagy az adatok törlését Érintett kéri, az Adatkezelők minden esetben megvizsgálják, hogy jogszabály alapján kötelező-e az adatkezelés. Ha igen, a törlési kérelmet az Adatkezelők megtagadják. Ha az adat kezelése nem kötelező, de arra az Adatkezelőknek van jogalapja, és az adatkezelés szükséges jogi igények előterjesztéséhez, érvényesítéséhez, illetve védelméhez, az Adatkezelők megvizsgálják, hogy az adat törölhető-e. Amennyiben az adat kezelését jogszabály nem írja elő, az adat kezelésére a hozzájáruláson kívül az Adatkezelőknek nincs jogalapja, vagy a jogalap ellenére nem indokolt az adat kezelése, az Érintett kérelmére az Adatkezelők törlik az adatokat. Amennyiben a törlési kérelmet az Adatkezelők megtagadják, erről az Érintettet minden esetben tájékoztatják, egyúttal pontosan megjelölik a törlési kérelem megtagadásának jogalapját és a jogorvoslati lehetőségeket is.
c. Az érintett tiltakozik az adatkezelés ellen. Amennyiben az adatkezelés alapja az adatkezelő jogos érdeke, az érintett tiltakozhat az adatok kezelése ellen. Ebben az esetben az Adatkezelők az adatokat törlik, kivéve, ha bizonyítható, hogy az adatkezelést olyan kényszerítő erejű jogos okok indokolják, amelyek elsőbbséget élveznek az érintett érdekeivel, jogaival és szabadságaival szemben, vagy amelyek jogi igények előterjesztéséhez, érvényesítéséhez vagy védelméhez kapcsolódnak. Amennyiben az érintett a reklámozási célú adatkezelés ellen tiltakozik, az adatokat az Adatkezelők törlik.
d. Bizonyossá válik, hogy az adatok kezelése jogellenes. Amennyiben az adat kezelése jogellenes, azt az Adatkezelők minden esetben törlik, mihelyt a jogellenes adatkezelés ténye nyilvánvalóvá válik.
e. Az adatok törlése jogi kötelezettség teljesítéséhez szükséges, vagy a törlést bíróság vagy a Nemzeti Adatvédelmi és Információszabadság Hatóság elrendelte. Ha a törlés jogszabály alapján kötelező, vagy azt bíróság vagy Hatóság rendelte el, és a rendelkezés jogerős, az Adatkezelők az adatokat törlik.
f. Az adatok tárolásának előre, jogszabályban vagy a hozzájárulásban meghatározott határideje lejárt. Amennyiben az adatkezelés időtartamát jogszabály írja elő, az Adatkezelők az adatokat a jogszabályban meghatározott időtartam elteltével törlik. A Pmt.-ben meghatározott adatokat az Adatkezelők a Pmt. 56. § alapján az üzleti kapcsolat megszűnését követő nyolc év elteltével törlik; a számvitelről szóló 2000. évi C. törvény alapján számviteli bizonylatnak minősülő iratokat, adatokat az Adatkezelők nyolc év elteltével törlik.
A törlés esetén az Adatkezelők az adatokat személyazonosításra alkalmatlanná teszik. Amennyiben jogszabály azt előírja, az Adatkezelők a személyes adatot tartalmazó adathordozót megsemmisítik.
5.6. Adatvédelmi incidensek kezelése
Adatvédelmi incidens a biztonság olyan sérülése, amely a továbbított, tárolt vagy más módon kezelt személyes adatok véletlen vagy jogellenes megsemmisítését, elvesztését, megváltoztatását, jogosulatlan közlését vagy az azokhoz való jogosulatlan hozzáférést eredményezi. Az Adatkezelők az adatvédelmi incidenst haladéktalanul bejelentik a Nemzeti Adatvédelmi és Információszabadság Hatóságnak, kivéve, ha az adatvédelmi incidens valószínűsíthetően nem jár kockázattal az Érintettek jogaira és szabadságaira nézve. Az Adatkezelők az adatvédelmi incidenseket nyilvántartják, együtt az adott incidenshez kapcsolódó intézkedésekkel. Ha az incidens súlyos (azaz vélhetően magas kockázattal jár az Érintett jogaira és szabadságaira nézve), az Adatkezelők indokolatlan késedelem nélkül tájékoztatják az Érintettet az adatvédelmi incidensről.
VI. AZ ÉRINTETTEK JOGAI ÉS ÉRVÉNYESÍTÉSÜK
6.1. Az Érintettek jogai
Tájékoztatás (hozzáférés). Az Érintettnek joga van ahhoz, hogy az adatainak kezeléséről tájékoztatást kapjon. Az Adatkezelők az Érintettet az adatok felvételekor tájékoztatják az adatkezelésről, emellett a jelen Tájékoztató bármikor elérhető az Érintett számára. Az Érintett az adatkezelés folyamán bármikor teljes körű tájékoztatást kérhet az adatai kezeléséről. Az Érintett kérheti, hogy az Adatkezelők az adatok másolatát bocsássák a rendelkezésére.
Helyesbítés. Az Érintett kérheti, hogy az Adatkezelők a rá vonatkozó pontatlan adatokat helyesbítsék, a hiányos adatot kiegészítsék.
Törlés, hozzájárulás visszavonása. Az Érintett bármikor visszavonhatja az adatai kezeléséhez adott hozzájárulását, kérheti az adatai törlését. Az Adatkezelők a törlést csak akkor tagadják meg, amennyiben az adatkezelés jogszabályon alapul, vagy az adatkezelés szükséges jogi igények előterjesztéséhez, érvényesítéséhez, illetve védelméhez.
Korlátozás. Az Érintettnek jogában áll az adatkezelés korlátozását kérni, az alábbi esetekben:
a) az Érintett vitatja a személyes adatok pontosságát, ez esetben a korlátozás arra az időtartamra vonatkozik, amely lehetővé teszi, hogy az Adatkezelők ellenőrizzék a személyes adatok pontosságát;
b) az adatkezelés jogellenes, és az Érintett ellenzi az adatok törlését, és ehelyett kéri azok felhasználásának korlátozását;
c) az Adatkezelőknek már nincs szükségük a személyes adatokra adatkezelés céljából, de az Érintett igényli azokat jogi igények előterjesztéséhez, érvényesítéséhez vagy védelméhez;
d) az Érintett tiltakozott az adatkezelés ellen; ez esetben a korlátozás arra az időtartamra vonatkozik, amíg megállapításra nem kerül, hogy az Adatkezelők jogos indokai elsőbbséget élveznek-e az Érintett jogos indokaival szemben.
Ha az adatkezelés korlátozás alá esik, az ilyen személyes adatokat a tárolás kivételével csak az Érintett hozzájárulásával, vagy jogi igények előterjesztéséhez, érvényesítéséhez vagy védelméhez, vagy más természetes vagy jogi személy jogainak védelme érdekében, vagy az Európai Unió, illetve valamely tagállam fontos közérdekéből lehet kezelni.
Tiltakozás. Amennyiben az adatkezelés az Érintett az Adatkezelők, vagy harmadik fél jogos érdekének érvényesítésén alapul, az Érintett jogosult arra, hogy a saját helyzetével kapcsolatos okokból bármikor tiltakozzon személyes adatainak kezelése ellen. Ebben az esetben az Adatkezelők a személyes adatokat nem kezelhetik tovább, kivéve, ha az Adatkezelők bizonyítják, hogy az adatkezelést olyan kényszerítő erejű jogos okok indokolják, amelyek elsőbbséget élveznek az Érintett érdekeivel, jogaival és szabadságaival szemben, vagy amelyek jogi igények előterjesztéséhez, érvényesítéséhez vagy védelméhez kapcsolódnak. Ha a személyes adatok kezelése közvetlen üzletszerzés érdekében történik, az Érintett jogosult arra, hogy bármikor tiltakozzon a rá vonatkozó személyes adatok e célból történő kezelése ellen. A tiltakozás esetén az Adatkezelők a közvetlen üzletszerzési célú adatkezelést megszüntetik.
Adathordozhatóság. Az Érintett jogosult arra, hogy a rá vonatkozó személyes adatokat tagolt, széles körben használt, géppel olvasható formátumban megkapja, továbbá jogosult arra, hogy ezeket az adatokat egy másik adatkezelőnek továbbítsa, feltéve, hogy az adatkezelés automatizált módon történik. Az Érintett jogosult arra, hogy – ha ez technikailag megvalósítható – kérje a személyes adatok más adatkezelőhöz történő közvetlen továbbítását.
6.2. Az érintett jogainak biztosítása, az érintett kérelmeinek kezelése
Az Adatkezelők az Érintettet a kapcsolatfelvétellel egyidejűleg tájékoztatják az adatok kezeléséről. Az adatkezelésről szóló rövid tájékoztatás megtalálható azon nyomtatványokon, amelyeken az Érintett megadja adatait, és az Érintett számára elérhető a jelen, részletes Tájékoztató is, amelynek tényére és elérhetőségére az Adatkezelők az Érintett figyelmét felhívják.
Az Érintett a jogai gyakorlására irányuló kérelmet bármilyen módon (szóban, írásban) eljuttathatja az Adatkezelőkhöz. Az Adatkezelők a kérelmet haladéktalanul megvizsgálják, döntést hoznak a kérelem teljesítéséről, és megteszik a szükséges intézkedéseket. Az Adatkezelők a megtett intézkedésekről egy hónapon belül tájékoztatják az Érintettet. A tájékoztatás minden esetben tartalmazza az Adatkezelők által megtett intézkedést, vagy az Érintett által kért tájékoztatást. Amennyiben az Adatkezelők a kérelem teljesítését elutasítják (nem teszik meg a kérelem teljesítéséhez szükséges intézkedéseket), a tájékoztatás tartalmazza a megtagadás jogalapját, indokait, és az Érintett jogorvoslati lehetőségeit.
Az Adatkezelők a kérelem teljesítését nem kötik díj fizetéséhez, a költségek megtérítéséhez.
Amennyiben a kérelem benyújtásának körülményei, módja miatt nem bizonyos, hogy a kérelem az Érintettől származik, az Adatkezelők kérhetik, hogy a kérelmező igazolja jogosultságát, vagy a kérelmet olyan módon terjessze elő, hogy a jogosultság egyértelműen megállapítható legyen.
Az Adatkezelők minden olyan címzettet tájékoztatnak a helyesbítésről, törlésről vagy adatkezelés-korlátozásról, akivel, illetve amellyel a személyes adatot közölték, kivéve, ha ez lehetetlennek bizonyul, vagy aránytalanul nagy erőfeszítést igényel. Az Érintettet kérésére az adatkezelő tájékoztatja e címzettekről.
6.3. Jogorvoslat
Az Érintett a jogainak sérelme esetén kérheti, hogy az Adatkezelők a jogellenes adatkezelést szüntessék meg, az adatkezelést, az Érintett kérelmének elutasítását vizsgálják meg. Az Adatkezelők az Érintett ilyen irányú panaszát minden esetben kivizsgálják, és annak eredményéről az Érintettet tájékoztatják.
Az Érintett panaszával fordulhat közvetlenül a Nemzeti Adatvédelmi és Információszabadság Hatósághoz (cím: 1125 Budapest, Szilágyi Erzsébet fasor 22/c.; telefon: +36-1-391-1400; e-mail: ugyfelszolgalat@naih.hu; honlap: www.naih.hu) is.
Az Érintett jogosult jogainak megsértése esetén bírósághoz fordulni.
Az Adatkezelők az Érintettet kérelemre részletesen tájékoztatják a per elbírálására hatáskörrel és illetékességgel rendelkező bíróságról, a perindítás lehetőségéről.
Hasonló ingatlanok
Szigetszentmiklós
Szigetszentmikós, Leshegy Ipari Parkban eladó 224.362 m2-es, jelenleg szántóként és magánútként nyilvántartott...
Fejlesztési terület
Budapest III. kerület
ÓBUDA FREKVENTÁLT RÉSZÉN 810 NM-ES RAKTÁR, 40 DB PARKOLÓHELLYEL ...
Biatorbágy
FEJLESZTÉSI TERÜLET (IPARI) KIVÁLÓ MEGKÖZELÍTÉSSEL, AUTÓPÁLYÁKHO...
Fejlesztési terület