+36 (30) 220 3030

Details

Number of properties: 1 db

Size of properties: 128 m2

Number of rooms: 4

Date of handover: 2026 vége-2027 eleje

Description

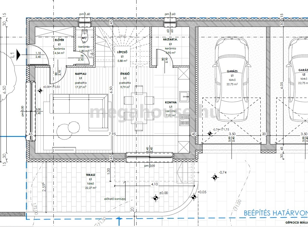
Törökbálint újtelepi részén, új építésű, N + 3 szobás br. 128 nm-es (105,2 nm hasznos lakó és 22,75nm garázs-tároló + 22,27 nm terasz) belső kétszintes ikerház, közel 200 nm saját használatú telekrésszel, dél-nyugati tájolással, 155 M Ft-ért eladó!

 

CSOK+  államilag támogatott hitel igényelhető                                                                                               Várható átadás  2026 vége-2027 eleje

Műszaki ismertető:

Az ikerfél földszinti részén kapott helyet a garázs és egyben tároló, mely a két épületrész elválasztásaként is szolgál. Hagyományos beton sávalapra épített és rendszerbe illesztett aljzat, lábazat és homlokzati hőszigeteléssel ellátott 30-as porotherm szerkezetű tégla falazatú épület.  A szinteket elválasztó födém monolit vasbeton, míg a záró födém fa szerkezetű. A homlokzat 20 cm eps és a zárófödém 25 cm vastag kőzetgyapot hőszigetelést kap.  A tető, kerámia cserép fedéssel valósul meg.

A homlokzati nyílászárók műanyag szerkezetű, 3 rétegű üvegezéssel kerülnek beépítésre.

Levegő-víz hőszivattyús fűtési rendszere garantálja a rendkívül költséghatékony fűtés és használati melegvíz biztosítását.

Az eredetileg kiírt műszaki tartalmon az alábbiakban bővült:

A nyílászárók kívül szürke színben kerülnek beépítésre

A bejárati ajtó 5 kamrás 3 db 3 dimenzióban állítható (120 kg –os) pánt, 5 ponton záródó, hőhídmentes alumínium küszöbbel.

 

A teraszajtók toló kivitelben kerültek beépítésre.

A gépkocsi beállóban autóstöltő kiépítése lehetséges. Kiállás biztosított.

 

A gépkocsi beálló tetőtere beépíthető a kedvező belmagasság révén kb. 20 nm.

 

Kettő db fan-coil kiállás kiépítése biztosított.

 

Az ingatlan frekventált, az óvároshoz közelebb eső részén található.

 

A minden igényt kielégítő ikerház központi elhelyezkedésénél fogva, minden korosztálynak rendkívül jó választás. A kialakítás miatt többgyermekes családoknak is kiemelten ajánlott. Gyalogosan  könnyedén elérhető minden oktatási, szociális, kulturális és kikapcsolódást nyújtó intézmény és létesítmény. A főváros metróhálózata tömegközlekedéssel mindössze 20 percre van, amivel pillanatok alatt eljuthat Budapest minden pontjára. Gépkocsival a bevásárló központok minden irányban néhány perc alatt elérhetőek. A természetet és túrázást kedvelők pedig gyalogosan 15 perc alatt a vadregényes hegyekben találják magukat. Ha mégis otthon keresik a kikapcsolódást, akkor a teraszon, sütögetés, borozgatás mellett a család és a vendégek is igazán jól érezhetik magukat.

 

A beruházó számos élő referenciával rendelkezik, megbízható és minőségi munkát végez. Az ingatlan hosszú éveken át gondmentes használata garantált.

Properties

Identifier Floor area Year of builtFloorTerrace / Balcony room Price CSOK PLUSDetails
350737 128 m2 2026 22 m2 4 155.000.000 HUF YESDetails